Siège de CMI - L'Orangerie
Bureaux
2008 - 2014
2008 - 2014
2008 - 2014
2008 - 2014
2008 - 2014
2008 - 2014
Réalisé
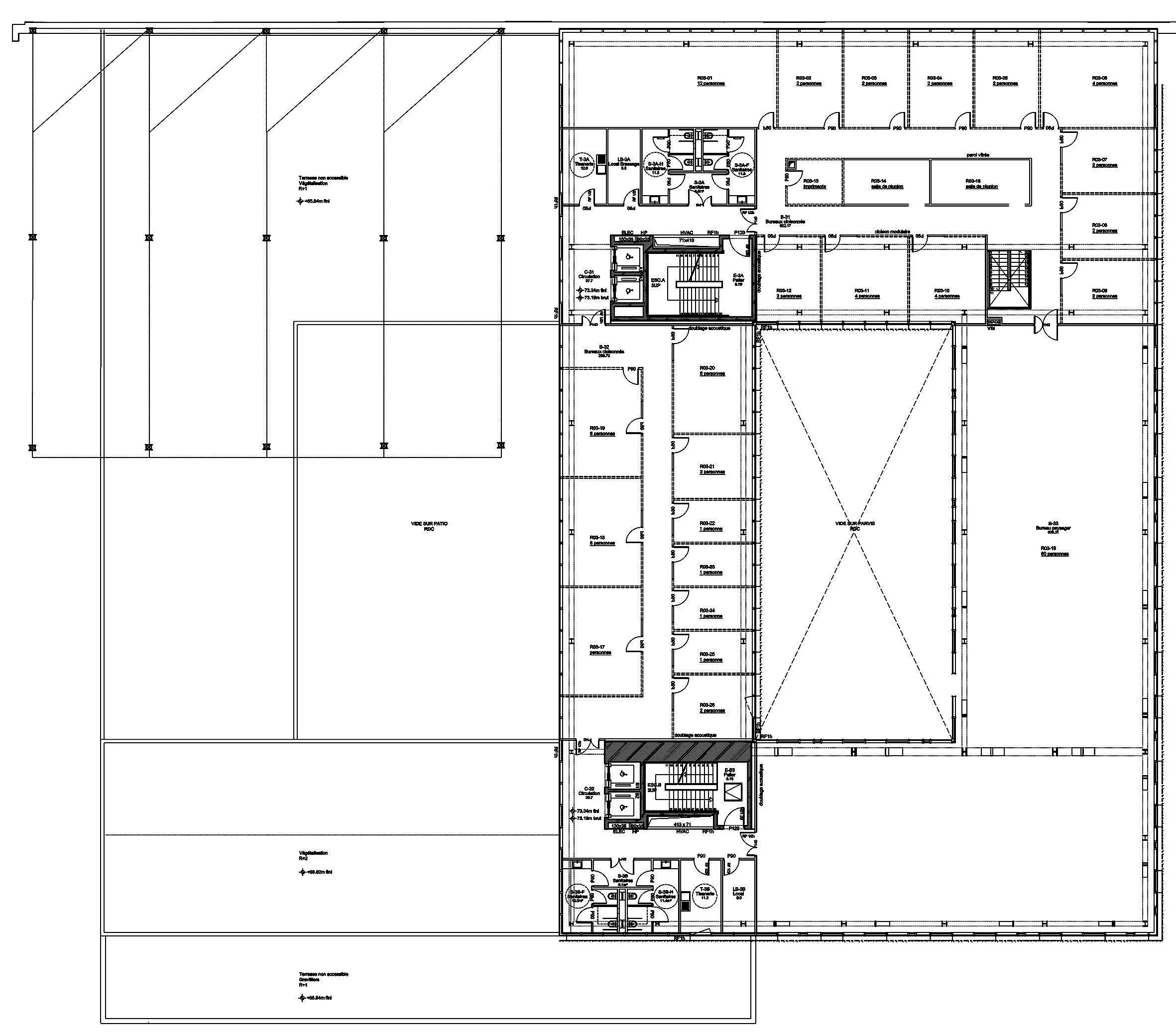
Dès l'entrée de la ville de Seraing, en cours de réaménagement (15 000 m²), le projet de regroupement du personnel travaillant dans la région liégeoise pour la société CMI (Cockerill Maintenance Ingénierie) annonce la profonde mutation avec un immeuble de bureaux de près de 8 250 m².
Côtoyant le château Cockerill déjà investi, en lieu et place des anciens ateliers de défense démolis partiellement, l'agence française Reichen et Robert & Associés réalise un corps bâti qui joue de glissements et décalages.
En respect de l'ancien édifice du XVIIIe siècle, il s'abaisse au nord pour se soulever au sud et projeter vers la ville un volume en console. La figure dégage une esplanade couverte intégrée à la place Kuborn réaménagée. L'espace public s'étire jusqu'au patio central, puits de lumière qui éclaire les bureaux organisés autour.
Un mur existant est conservé pour prendre appui ainsi qu'une partie des verrières en sheds, sous lesquelles le nouvel équipement se glisse. Devant une façade composée de panneaux en aluminium anodisé et de vitrages clairs fixes est étirée une seconde peau en aluminium anodisé or. Perforée à 50 % suivant un motif de briques, elle forme un brise-soleil pour le confort des usagers.
Chatoyant au gré de la lumière, ce bâtiment respecte les prescriptions de la démarche HQE (Haute qualité environnementale). L'ensemble est baptisé « L'Orangerie », en référence à l'ancien jardin du château, alors considéré comme l'un des plus beaux d'Europe.
Rafaël Magrou
| Sources |
|---|
| Eriges, en ligne https://eriges.be/, consulté le 20/05/2014. |
| «Reichen et Robert & Associés : Architectes-urbanistes» sur le site Reichen et Robert & Associés : Architectes-urbanistes, en ligne https://www.reichen-robert.fr/fr, consulté le 20/05/2014. |