Maisons As-Build

Habitation unifamiliale

2012 2012 2012
Réalisé

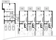
Le projet vise à construire un lotissement de trente-sept logements à ossature métallique, à faible empreinte écologique. Une vingtaine de maisons et une dizaine d'appartements basse consommation d'énergie, comportant chacun un espace privatif extérieur, devaient sortir de terre. 

Ce lotissement était vu comme une vitrine pour le promoteur As-Build, filiale du groupe sidérurgique Arcelor-Mittal, fabriquant des maisons en acier. À la suite de la faillite de la société, les travaux ont été stoppés. 

Seule la première livraison de sept logements – sur les cinq phases qui étaient initialement prévues – a été réalisée. Les architectes inscrivent avec justesse le projet dans le paysage de la crête de la colline, récemment défigurée, sur la même avenue, par un groupe d'immeubles à appartements clé-sur-porte.

Anne-Catherine De Bast

Sources
Wauters L., «Cité du fer et... maisons d'acier» dans Le Soir, 4 avril, 2006.