Maison Merlot-Monville

Habitation unifamiliale

1950 - 1952 1950 - 1952 1950 - 1952
Réalisé

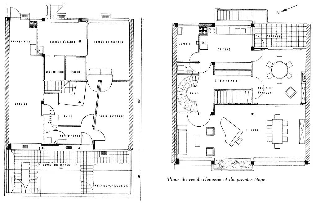
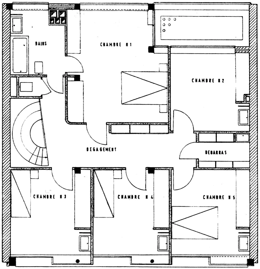
Cette grande maison de trois niveaux d'apparence cubique (10,90 m x 11,35 m au sol et de 9,35 m en hauteur) a été réalisée dans une rue en voie d'élargissement près d'un rond-point. Elle accueille le cabinet d'un médecin au rez-de-chaussée et développe les espaces de vie aux deux autres niveaux. 

L'écriture est élégante et proportionnée. La façade à rue, d'apparente simplicité, révèle sur chaque niveau une articulation différente. Au rez-de-chaussée, l'ensemble des baies est en léger recul et deux minces colonnes rondes induisent une perception de profondeur. Au premier étage, une loggia vitrée du sol au plafond s'inscrit dans la grande baie en bandeau et enrichit les espaces du séjour. Au deuxième niveau, une grande baie qui occupe, comme au premier étage, toute la largeur de la façade alterne des châssis à fleur de façade et des renfoncements.

Maurizio Cohen

Sources
«Maison de médecin à Seraing» dans La Maison, n° 12, décembre, 1954, p.381-382.