Centre Adeps "La Marlette"
Centres sportifs / salles de sport / gymnases
1967 - 1969
1967 - 1969
Réalisé
Élève de Georges Pepermans à l'institut Sint-Lukas de Schaerbeek, Pierre Corbisier est l'auteur, entre 1962 et 1986, de plusieurs centres sportifs qui témoignent de l'évolution de son langage depuis un fonctionnalisme radical jusqu'au high-tech en passant par le brutalisme.
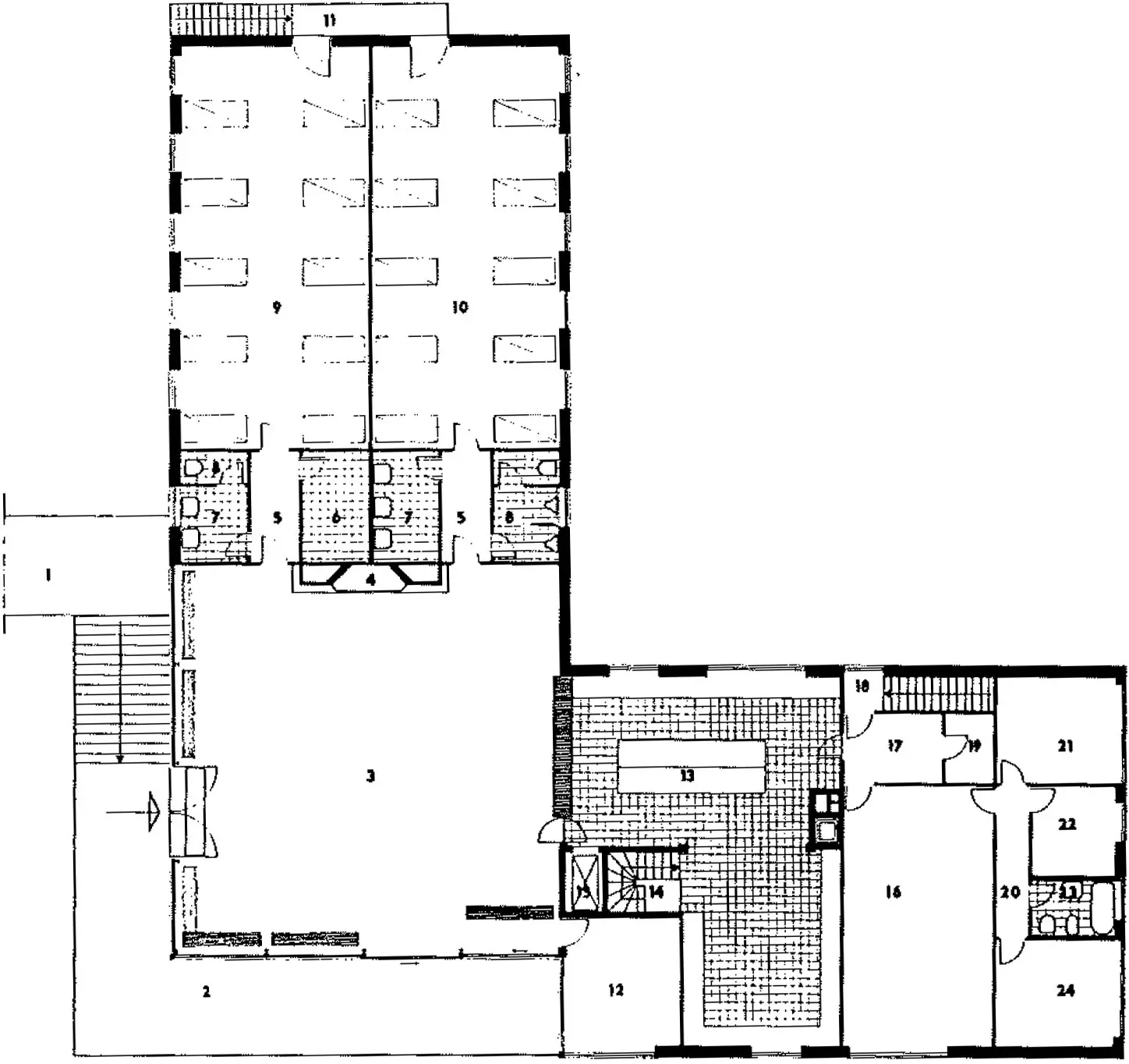
Le centre Adeps de Seneffe illustre, tout comme le centre sportif du ministère des Finances à Strombeek-Bever construit cinq ans plus tôt, la première phase de sa carrière. Composé d'un volume principal à deux niveaux et de six dortoirs reliés à celui-ci par une allée couverte, le centre est dévolu à la pratique de l'aviron, du kayak et de la petite voile sur une branche du canal de Charleroi à Bruxelles. Il abrite, au rez-de-chaussée, des garages à bateaux, un atelier, une salle de sport et des vestiaires sanitaires, et, à l'étage, une salle à manger, une cuisine et l'appartement du concierge, ainsi que deux dortoirs, aujourd'hui transformés en bureaux.
Reposant sur une dalle nervurée, le premier étage s'ouvre largement sur le plan d'eau par une terrasse en porte-à-faux sur l'angle sud-est, à l'origine reliée à la toiture par de minces montants métalliques. Ceux-ci, tout comme les garde-corps en tôle peinte, ont été remplacés au cours des années 1990 par des éléments de bois qui, bien que moins légers, ne défigurent pas la stricte composition géométrique de l'ensemble.
Les façades sont marquées par le contraste noir et blanc des pans de briques peintes et des baies qui, occupant toute la hauteur des étages, sont ponctuellement pourvues d'allèges en bois qui font écho aux frises horizontales de basralocus séparant les étages et soulignant la rive de la toiture plate.
Le jardin accueille une sculpture abstraite de Marcel Arnould, ami de l'architecte.
Claudine Houbart
| Sources |
|---|
| Dictionnaire de l'architecture en Belgique de 1830 à nos jours, Anvers : Fonds Mercator, 2003, p.225-226. |
| «La Marlette Seneffe. Centre spécialisé» dans Neuf, n° 58, novembre-décembre, 1975, p.101. |
| «Centre Régional des Sports nautiques à Seneffe» dans La Maison, n° 1, janvier, 1969, p.29-32. |