Maison Wathour

Habitation unifamiliale Cabinets médicaux / dentisterie

1973 1973
Réalisé

À l'origine, deux couples d'amis de l'architecte proposent de construire leurs maisons voisines sur un terrain en pente à la limite de l'agglomération, dans un environnement verdoyant à proximité d'une grande ferme. 

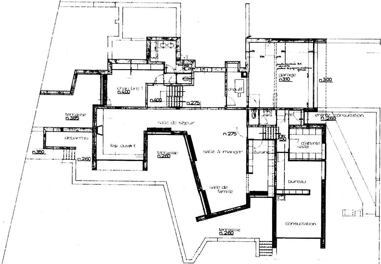
Le développement organique des deux projets rappelle les profils des villages où les volumes se succèdent par stratification et accumulation. Au moment d'entamer la construction, seule une maison est réalisée, utilisant judicieusement la pente naturelle sur trois demi-niveaux, perpétuant ainsi l'idée première d'une composition d'ensemble. 

En contraste avec les constructions voisines compactes, mais conventionnelles, plusieurs volumes s'enchaînent en répondant à la complexité programmatique qui prévoit un cabinet de consultation avec une entrée indépendante. Cette fragmentation se traduit à l'extérieur par des toitures inclinées dans plusieurs directions et des profils dynamiques dominés par des obliques. 

La maison, habillée de briques, est complètement peinte en blanc, ce qui valorise la richesse plastique de la composition des volumes, comme à l'intérieur où – grâce à l'éclatement des limites entre les fonctions – les espaces respirent avec générosité, soulignés par les nombreux apports de lumière naturelle. Des murets bas, parfois en continuité des façades, délimitent des terrasses extérieures et des espaces de recul qui accentuent l'assise du projet sur le dénivellement. 

La faible densité de l'environnement et la présence d'une végétation riche et variée garantissent à la maison des perspectives agréables.

Maurizio Cohen

Sources
Strauven Francis, Albert Bontridder, architecte et poète, 2005.