Grand Séminaire de Namur
Jalon XX
Eglises ou apparenté Centres communautaires Centres de formation
1934 - 1938
1934 - 1938
1958 - 1967
1958 - 1967
Réalisé
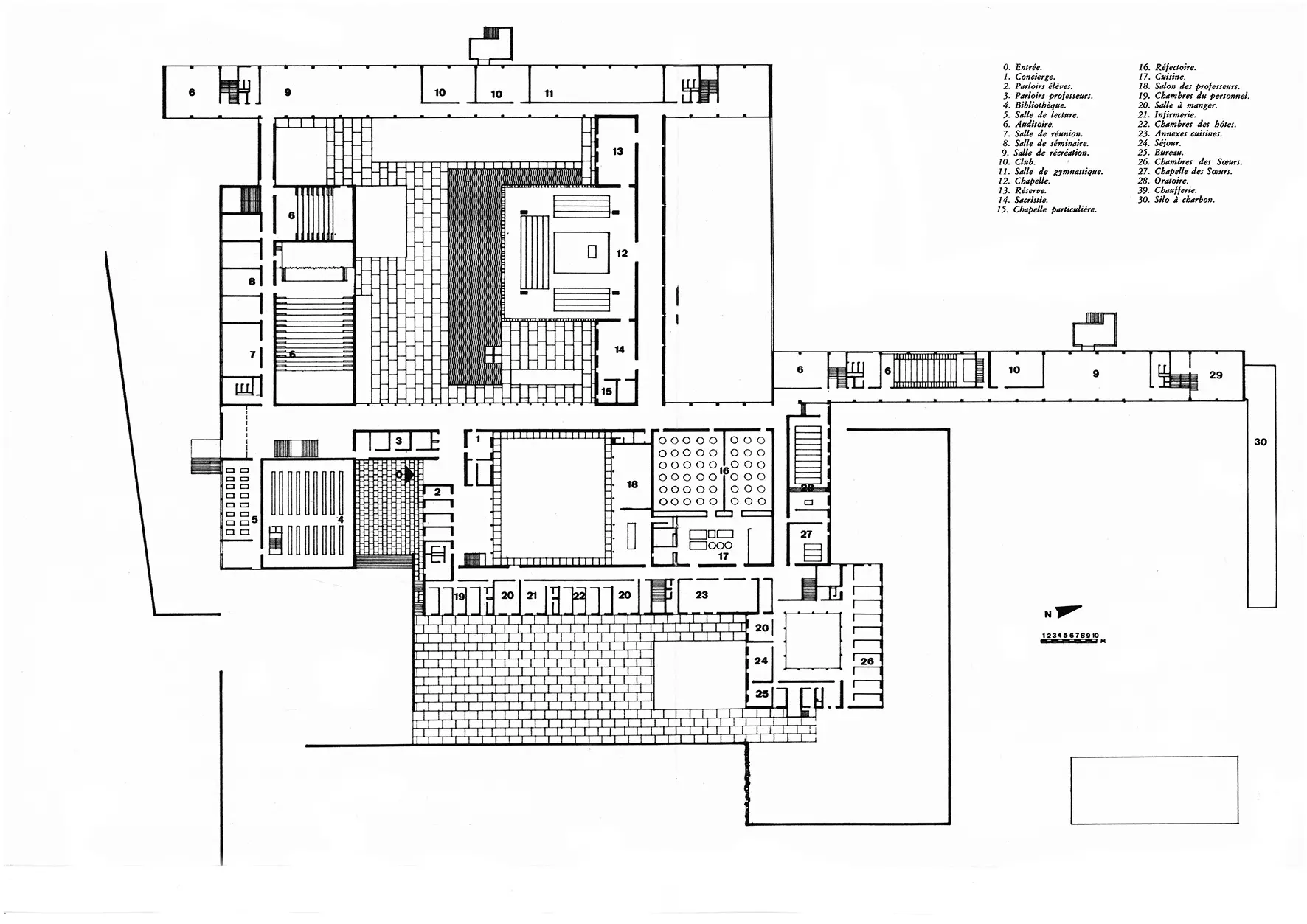
Au début des années 1960, l'évêché de Namur décide de quitter le centre-ville. Afin d'y édifier le nouveau Grand Séminaire, il choisit un site à Salzinnes : celui de l'ancienne abbaye cistercienne du Val-Saint-Georges, qui fut supprimée à la Révolution française. Le bâtiment doit abriter la fusion de la Faculté de philosophie de Bastogne et celle de théologie de Floreffe. Le programme est complexe : deux catégories d'étudiants doivent cohabiter de manière autonome, avec des locaux spécifiques à chacune d'elles, mais avec le besoin d'avoir des locaux communs : chapelle, bibliothèque, réfectoire Certains doivent être accessibles au public. De plus, les trois cents personnes à accueillir doivent pouvoir vivre en autarcie. Les volumétries traduisent l'important programme : deux prismes allongés, orientés nord-ouest/sud-est, accueillent les cent vingt chambres des séminaristes. La structure interne est régie par un module de 2,40 m qui définissent la largeur d'une chambre. Ces deux entités sont reliées entre elles par des ailes d'un ou deux niveaux, se développant à l'horizontale. Celles-ci abritent les espaces collectifs. De plus, un couvent de religieuses ajouté au programme est aménagé dans un petit bâtiment organisé autour d'un patio, à l'image d'un cloître. La chapelle est implantée au centre, recouvert de vitraux conçus par l'artiste Louis-Marie Londot. L'ensemble du complexe est unifié par une écriture architecturale similaire, tout en identifiant clairement chaque entité par des volumes de hauteurs variables. L'influence du couvent Sainte-Marie de La Tourette de Le Corbusier en France (Évreux, 1956-1960) est reconnaissable, notamment pour le traitement des élévations des bâtiments de pension : chaque chambre devient une sorte de case au sein d'une maille composée de carré. Comme à son habitude, le béton est laissé brut, avec une forte expression des voliges ayant servi au coffrage. L'utilisation d'une brique rouge afin de remplir la structure vient habiller la façade, tout en contextualisant l'ensemble. Chaque niveau est marqué par une épaisse ligne de béton, venant souligner l'horizontalité. Les hauteurs importantes sont, de la sorte, ramenées à une échelle plus humaine. Oeuvre exceptionnelle de l'architecture moderne en Wallonie, le Grand Séminaire est aujourd'hui propriété de la Province de Namur – qui édifie à ses côtés son nouveau siège administratif (Philippe Samyn & Associés, 2018 - en cours).
Kevin Versailles
| Sources |
|---|
| . |
| Moureau Vincent, Roger Bastin : monographie d'une architecture oubliée, Bruxelles, ISAI Victor Horta, Architecture, 1994. |
| De Ghellinck Bénédicte, «L'ancien grand séminaire de Salzinnes» dans Les Nouvelles du Patrimoine, n° 87, juillet-août-septembre, 2000. |