Maison Bastin
Jalon XX

Habitation unifamiliale

1959 1959
Réalisé

C'est sur une parcelle juchée sur un éperon rocheux à l'extrémité de l'avenue Vauban que Roger Bastin décide d'implanter un édifice abritant son habitation ainsi que son bureau. 

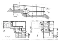
À cause de la déclivité importante du site et des multiples affleurements rocheux de grès, le terrain est jugé difficilement constructible. C'est pourtant à partir de ces contraintes que Roger Bastin fait émerger les qualités de ce projet. D'une part, la pente joue un rôle premier dans l'organisation des espaces et des fonctions, et, d'autre part, la matérialité du projet est aussi liée aux conditions du site. Le bâtiment adopte un plan en L qui s'adresse à plusieurs niveaux de sol différents organisés en terrasses. 

Au niveau bas, un chemin  d'accès mène à un parvis d'entrée situé à l'intérieur du L. Un hall d'entrée sur double hauteur contenant l'escalier est mutualisé pour les fonctions de bureau et d'habitation et vient se trouver à la rencontre des deux volumes.  Le bureau vient trouver sa place dans la petite partie du L, sur un étage situé à demi-niveau, coupant ainsi sa relation directe avec le sol bas du bâtiment. C'est d'ailleurs le seul espace qui n'est pas en rapport direct avec un sol naturel extérieur. Ensuite, le volume principal abrite les fonctions résidentielles. Cette aile constituée de deux étages s'adresse à des niveaux de sol différents, répartis en terrasses à l'est et à l'ouest. Les espaces situés de part et d'autre de la cage d'escalier sont à des niveaux différents et bénéficient de hauteur sous plafond variable. Ce volume principal est ensuite rendu unitaire par une grande toiture dont la pente continue souligne la déclivité du terrain naturel. 

Comme évoqué, la matérialité du projet est, elle aussi, liée aux conditions difficiles de cette parcelle. Bastin réutilise le grès extrait du terrain sous forme de moellons comme matériau de construction pour les murs. Cet édifice est un magnifique exemple de la capacité de l'architecte à transformer les contraintes en opportunités, renforçant la dimension de l'habiter du projet. 

Jean-Philippe Jasienski

Sources
Roger Bastin architecte 1913-1986, Sprimont, Mardaga, 2011, p.69-71.
Fonds Roger Bastin, Archives UCLouvain, Faculté LOCI, Louvain-la-Neuve.