Maison Couvelance

Habitation unifamiliale

1990 - 1991 1990 - 1991 1990 - 1991
Réalisé

Construite pour une famille de quatre enfants, la maison située sur un terrain en pente se sert du dénivelé pour s'établir en discrétion. De la rue, elle apparaît comme une petite habitation de plain-pied. Alors qu'elle s'étire dans la profondeur de la parcelle, un second niveau se dévoile progressivement. 

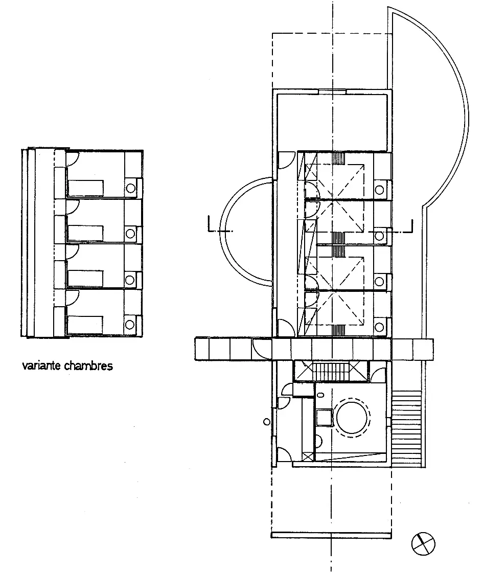
La forme de la construction est déterminée par un jeu de volumes simples rappelant chacun les géométries élémentaires de la maison archétypale. Le parallélépipède rectangle à partir duquel s'organise le plan s'allonge significativement alors que le toit qui devrait en suivre les contours est décalé de quelques mètres. Déplacé après le garage, il s'allonge par-delà le corps du bâtiment et recouvre la terrasse en aval. L'étage supérieur, au niveau de la rue, est composé d'une série de chambres en enfilade desservies par un couloir latéral. L'étage inférieur est, quant à lui, moins strictement organisé : cuisine, salle à manger et salon sont disposés dans un plan ouvert augmenté d'une extension semi-circulaire. 

Un dernier espace délimité par une légère différence de niveau sert de tampon entre le logement et la terrasse, puis le jardin. Se distinguant nettement des habitations avoisinantes par sa plasticité, cette maison ne leur est pourtant pas étrangère. 

Les matériaux, les éléments et la composition participent ensemble à faire de ce projet une variation aboutie sur le thème de la fermette wallonne et, plus largement, de l'habitation unifamiliale.

Antoine Wang

Sources
«Addition de formes simples» dans A+D, n° 4, 1995.
Cordemans Charly, «Architecture vécue - Une habitation à Saive» dans Je vais construire, n° 162, juin, 1993, p.29-30.
Loze Pierre, «Quatre architectes : Mario Garzaniti, Pierre Hebbelinck, Martine De Maeseneer, Vincent Van Duysen» dans A+, n° 121, mars, 1993, p.56-59.