Promenade couverte du parc de l'Abbaye de Saint-Ghislain
Parcs et jardins
2010 - 2011
2010 - 2011
Réalisé
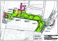
Tel un cheminement piéton couvert, la promenade des Jardins de l'abbaye de Saint-Ghislain traverse ce site historique important, comme en témoignent les quelques traces de l'ancien monastère créé en 650.
L'horizontalité de la couverture en zinc contraste avec la verticalité des poteaux de soutien en acier, entrant en résonance avec les arbres présents le long de la promenade. L'emploi du bois pour le bardage des parois et des pontons accentue le mimétisme avec la nature.
Le sentier, le plus souvent réalisé en pierre d'un rose tendre, parfois bordé d'une rigole de cailloux bleus, rompt délicatement avec le vert profond des pelouses du parc. L'espace d'un instant, le long d'un mur en briques rouges, l'allée se pare d'un plancher en bois légèrement surélevé, par effet de flottement.
Damien Darcis
| Sources |
|---|
| Grand prix d'architecture de Wallonie 2012, Namur, UWA, p.48-49. |
| «Aménagement du parc de l'abbaye» dans Architrave, n° 179, février, 2014, p.51. |