Écoles techniques féminines du Hainaut
Jalon XX

Ecoles secondaires

1949 - 1953 1949 - 1953
Réalisé

Les Écoles techniques féminines du Hainaut font partie du « Nouveau Saint-Ghislain », nouveau pôle de la commune dont l'architecte René Panis dressa le plan de reconstruction après la Seconde Guerre mondiale. 

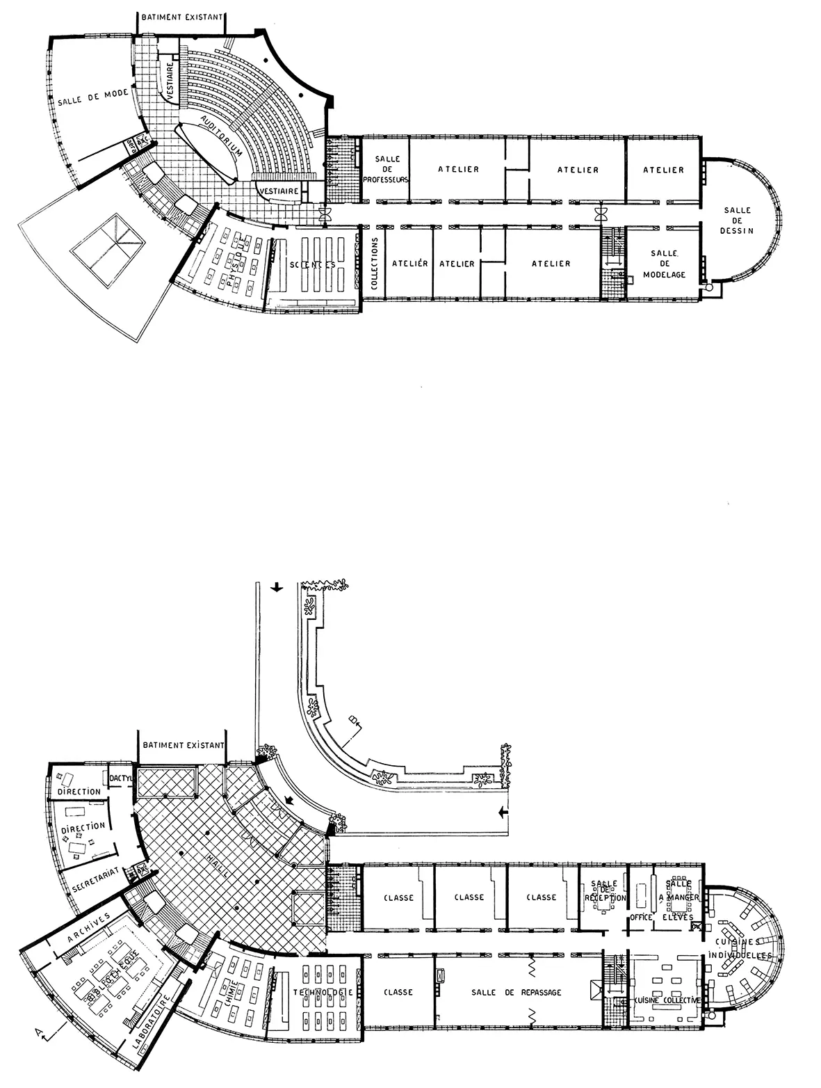
Victor Bourgeois, l'un des plus importants initiateurs du Mouvement moderne en Belgique, se voit confier en 1949 l'achèvement de l'établissement scolaire, dont une seule aile avait été construite. Comme Bourgeois le soulignait dans la publication de 1952 qui survole son œuvre, l'implantation d'une nouvelle aile perpendiculaire à l'existante lui était imposée par la géométrie de la parcelle. 

Cette réalisation est caractéristique du modernisme modéré de Bourgeois. Il s'agit d'une distribution spatiale « à l'ancienne » : trois étages de locaux de classes et d'ateliers de part et d'autre d'un couloir central. Le choix des matériaux traditionnels est également remarquable : en accord avec l'architecture de l'aile existante, le corps principal est réalisé en briques rouges, posé sur un socle de pierre bleue. 

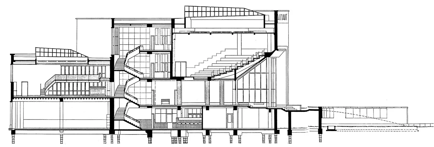
Les parties vitrées, en bandeaux horizontaux, sont également bordées de pierre bleue, tandis que la pierre blanche exprime le rythme structurel du bâtiment. Bourgeois a porté une attention spécifique à l'articulation entre les deux ailes. Il situe là une entrée monumentale : « Façade principale en forme d'accueil, avec la charnière vers le dedans, en forme convexe ; façade extérieure vers le quartier des résidences, avec la charnière vers le dehors. Faut-il souligner que cet axe assure les fonctions de prestige : devant, le hall forme une salle d'exposition ; derrière, la bibliothèque se transforme en salle de bal. » 

Bourgeois situe l'entrée sous l'auditorium, dont le sol incliné détermine en coupe la spatialité du hall. Pour l'architecte, il s'agit d'une référence au Teatro olimpico d'Andrea Palladio à Vicence. 

Iwan Strauven

Sources
«Auditoire» dans Habitat et habitations, n° 3, mars, 1957.
Bourgeois Victor & Flouquet Pierre-Louis, Victor Bourgeois. Architectures 1922-1952, Bruxelles, Éditions Art et technique, 1952, p.62-63.
Jurbise, Lens, Quaregnon et Saint-Ghislain, Wavre, 2007.
Flouquet Pierre-Louis, «Écoles techniques féminines du Hainaut» dans La Maison, n° 3, mars, 1956, p.80-84.