Arsenal

Logement public

2008 - 2016 2008 - 2016
Réalisé

Ancien entrepôt de la SNCB désaffecté au début des années 2000 et dédié, il y a encore quelques décennies, à la formation des mécaniciens à la réparation des locomotives, cette grande halle constitue un témoignage privilégié de l'activité économique et industrielle de Pont-à-Celles. 

Lorsqu'en 2008, à la suite du rachat du bâtiment par la commune, les Jardins de la Wallonie s'en saisissent pour proposer la création d'un ensemble de logements sociaux, ils engrangent un processus de reconversion et d'assimilation d'un patrimoine architectural à l'identité visuelle forte. La réhabilitation et la transformation opérées par LRArchitectes tendent à préserver le plus possible la construction d'origine et n'engendrent que de rares modifications sur l'enveloppe extérieure. 

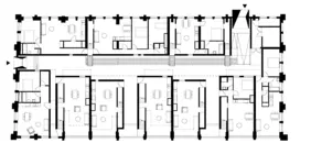
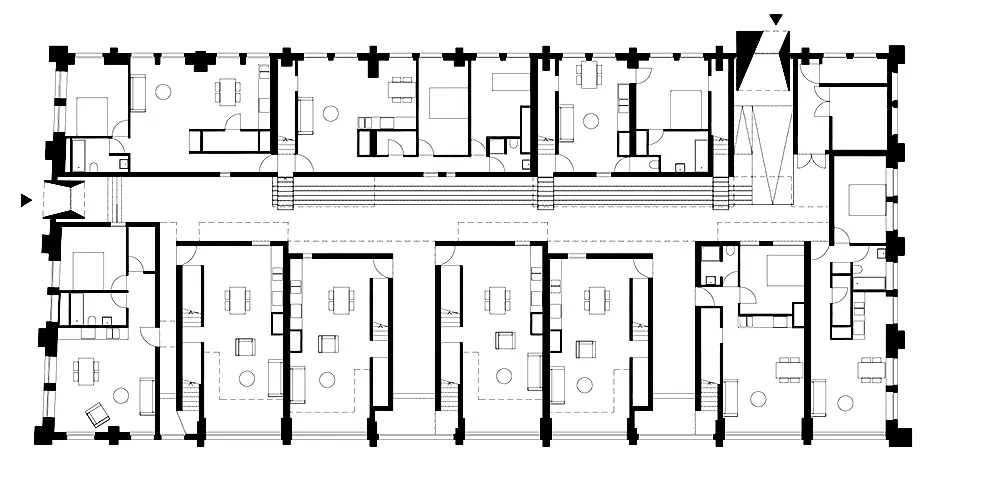
Au-delà de la création d'une nouvelle entrée discrète, les façades ne subissent aucun changement ; les dimensions et le découpage des fenêtres ne sont pas altérés. Les vingt-quatre logements se développent à travers la grande halle, sur deux niveaux, autour d'un axe central baigné de soleil, assimilable à une rue intérieure. Les appartements, en simplex ou en duplex, jouent avec les doubles hauteurs qu'imposent les châssis existants ainsi que la différence de dénivelé qui séparait originellement en deux la construction. Une kyrielle de petites ouvertures constellent les façades de la « rue intérieure », apportant aux larges surfaces enduites et lumineuses des rythmes et des respirations.

Anne-Laure Iger

Sources
LRArchitectes, 2006-2016, 2017.