Maison Denis

Habitation unifamiliale

1992 - 1994 1992 - 1994
Réalisé

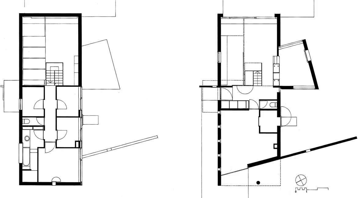
Cette maison pour un couple et ses trois  enfants a été construite sur une parcelle étroite, toute en longueur, aux confins de la Hesbaye et de la Basse-Meuse. 

Pour concrétiser le projet, l'architecte a expérimenté les limites : celles du budget, de l'environnement, du terrain. Il a tenu compte de l'orientation, du bâti pavillonnaire et arboré du quartier, ainsi que de l'étroitesse du site. Le volume de parpaing, matériau choisi pour sa capacité à retenir et à fixer les végétations moussues, est couvert d'une toiture à un versant. Il intègre un garage, qui se glisse sous la zone de nuit. Le séjour s'encastre en travers du volume principal, en rupture. 

L'extension n'est pas de l'architecte.

Anne-Catherine De Bast

Sources
Pierre Hebbelinck : 6e Biennale d’architecture de Venise, 1997.
Loze Pierre, «La jeune architecture à Liège» dans Domino, n° 20, septembre, 1994, p.48-51.
Richard Alain & Hebbelinck Pierre & Loze Pierre, «Entretien avec Pierre Hebbelinck» dans A+, n° 141, août, 1996, p.46-51.
«Maison Denis : l'expérience des limites et du hasard.» dans A+, n° 141, 1996, p.56-57.