Ferme de Grand Aaz - Bureau Stratégie
Bureaux
2004 - 2007
2004 - 2007
2004 - 2007
2004 - 2007
Réalisé
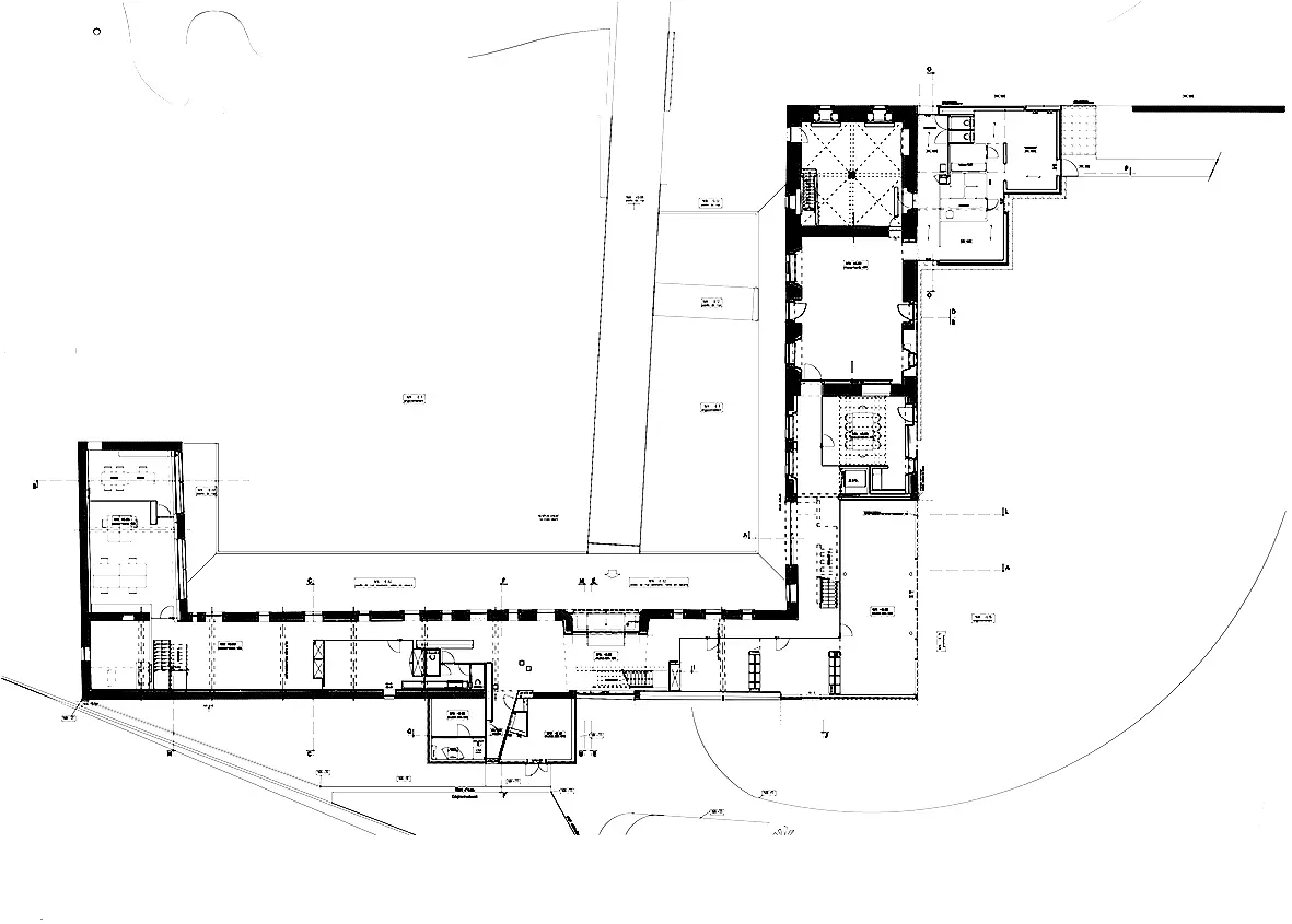
Une ancienne ferme en carré, aux volumes simples, a été réaffectée en bureaux d'une agence de communication. L'intervention se devait d'être modeste afin de respecter le caractère du lieu, qui avait été préservé jusque-là. Pour permettre à l'entreprise de s'épanouir dans ses nouveaux locaux, un bâtiment parallélépipède a été construit de manière à relier deux volumes existants, aux gabarits différents. Des percements discrets et contemporains ont été faits au niveau des toitures et des façades pour augmenter l'apport de lumière naturelle dans les espaces intérieurs, sans dénaturer l'identité des lieux. Dans le même esprit, l'ensemble a été isolé également par l'intérieur, améliorant ainsi la qualité thermique en évitant de modifier les façades.
Anne-Catherine De Bast
| Sources |
|---|
| Archives Philippe Valentiny. |