Hôtel de ville d'Ougrée et Centre médical et consultation d'hygiène mentale
Jalon XX
Hôtel de ville, cité/antenne administrative ou bâtiment institutionnel Polycliniques
1961 - 1966
1961 - 1966
1951 - 1972
1951 - 1972
1951 - 1972
Réalisé
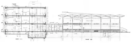
Construit face à la Meuse, à proximité d'établissements industriels et sur un terrain résiduel des boucles d'un échangeur routier, l'hôtel de ville loge une salle de réunion, un bâtiment administratif et la salle du conseil, dont le volume marque la composition.
Réalisé en ossature métallique apparente, ce dernier se présente en grande boîte vitrée sur les deux faces principales, habillées latéralement de pierres de taille. La couverture est réalisée avec une structure métallique tridimensionnelle en aluminium, générant une toiture en losanges aux versants plissés.
Légèrement rehaussé par rapport au niveau du sol et offrant un bandeau continu de vitrage sur les quatre façades décollant la toiture, il donne légèreté à l'ensemble, bien que sa stature soit imposante. Lieu du débat démocratique et de la vie collective, il incarne la fonction par transparence, ouverte sur les alentours. Une rampe de marches en béton armé mène à l'accès principal, qui termine sur un mince palier donnant accès au hall d'accueil et d'attente.
Le bâtiment administratif se révèle, par contraste, plus conventionnel et rationnel dans ses articulations. Parallélépipède de trois niveaux, sa structure est en béton armé. L'habillage extérieur est réalisé avec un mur rideau en aluminium anodisé avec des châssis opaques et réfléchissants, de ton bronze, alternés par des panneaux de remplissage bruns. Entre les deux corps, un petit volume de liaison bas permet d'accueillir le public et de l'orienter vers les différents services.
Le complexe prend fin dans un volume bas en pierre de taille et verre, qui abrite les bureaux de police et s'étend au départ de l'un des angles du bâtiment administratif. Aux abords du terrain, le Groupe E.G.A.U. réalise le siège d'une policlinique (aujourd'hui Policliniques universitaires d'Ougrée) dans le profil de la pente, à la présence plus discrète et introvertie, contrefort protecteur de l'administration communale sur la rue latérale.
Sur le plateau de l'hôtel de ville, le bâtiment se déploie sur la longueur, en un seul niveau hors terre. Le matériau principal est la même pierre de taille que celle des bâtiments voisins, créant la continuité et la cohérence entre les différentes fonctions.
Maurizio Cohen
| Sources |
|---|
| Deplus Gérald, Mémoire(s) d'EGAU. Un demi-siècle d'architecture, Liège, ISA Saint-Luc Liège , Architecture, 2001, p.40-45. |
| Strauven Francis & Bekaert Geert, La construction en Belgique 1945-1970, Bruxelles, Confédération nationale de la construction, Ministère des Travaux publics, 1971, p.304-305. |