Cité du Bois Saint-Jean / Siège de la Société coopérative de logements sociaux « Le Home ougréen »
Jalon XX
Logement public Bureaux
1953 - 1958
1953 - 1958
1953 - 1958
1953 - 1958
1953 - 1958
Réalisé
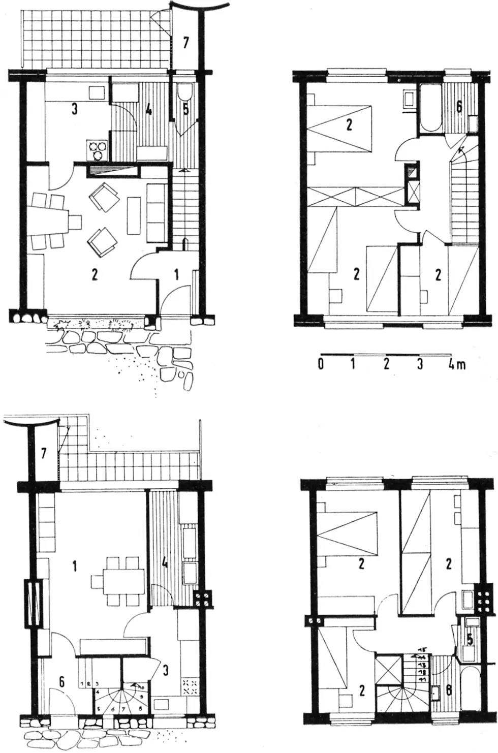
La cité du Bois Saint-Jean est composée d'une série d'interventions qui se sont succédé dans le temps à partir du début des années 1950. Le terrain choisi est un grand plateau situé au sud du bassin industriel liégeois, le long de l'avenue du Centenaire à Ougrée.
Les premiers bâtiments sont de la moitié des années 1950, et leur réalisation s'inscrit dans les programmes de logement promus par la Communauté européenne du charbon et de l'acier (CECA) pour de nouveaux quartiers résidentiels équipés des infrastructures nécessaires (école, commerces, salles et terrains de sport), mais, surtout, d'une variété de solutions habitatives pouvant répondre à l'urgence de l'après-guerre : remplacer les baraquements et les taudis.
L'implantation générale suit la tradition des cités-jardins avec une forte proportion d'espaces verts et des parcours hiérarchisés où la circulation privilégie le piéton. Les premiers groupes de constructions s'inspirent des réalisations modernistes de l'entre-deux-guerres ; ils s'illustrent par la sobriété et la rigueur des proportions, usant de solutions originales, comme les soubassements en moellons de grès, les escaliers extérieurs, les garde-corps métalliques des balcons et les toitures débordantes.
Le bâtiment administratif est au centre de la cité et est construit sur deux niveaux hors terre. Ses façades ont un rythme régulier dû à l'ossature en béton armé apparente. Les remplissages en briques émaillées s'alternent à des baies vitrées disposées rationnellement. Des balcons et des auvents animent le volume et renforcent son élégance sobre.
Maurizio Cohen
| Sources |
|---|
| Deplus Gérald, Mémoire(s) d'EGAU. Un demi-siècle d'architecture, ISA Saint-Luc Liège Wallonie, Architecture, 2001, p.89-96. |
| «La cité-jardin du Bois Saint-Jean à Ougrée» dans La Maison, n° 8, août, 1957, p.234-236 ; 261. |