Maison Dejaive

Habitation unifamiliale

1976 - 1977 1976 - 1977
Réalisé

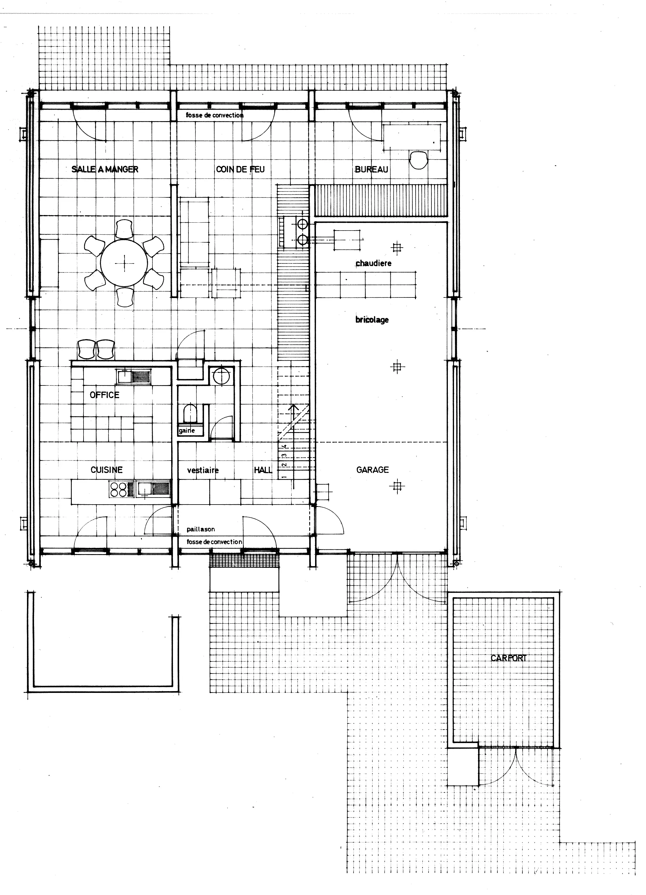
Sur une parcelle du bois de Rognac, une maison digne du jeu de Monopoly est déposée suivant les normes du permis de lotir. Une aire d'accès, encadrée par l'écran d'un patio et l'abri de jardin, conduit au cœur d'un dispositif spatial d'apparence complexe, se révélant pourtant d'une simplicité déconcertante. 

Le programme s'organise dans trois travées identiques. Les zones de service escamotent leur valeur d'usage et contribuent directement à fonder l'espace. Tous les éléments du construit – structure, mobilier intégré, escalier ajouré, mais, aussi, grilles de sol, paillassons encastrés – composent une partition dynamique à la mise en œuvre rigoureuse. 

Cette approche, qui associe modestie et art de vivre, représente un contre-modèle de la villa de lotissement, rejoignant davantage l'idée d'archétype de la maison pavillonnaire.

Georges-Éric Lantair

Sources
«Maison à Neuville-en-Condroz» dans A+, n° 63, mars-avril, 1980, p.17.