Maison Cescotto-Li

Habitation unifamiliale

1993 - 1996 1993 - 1996
Réalisé

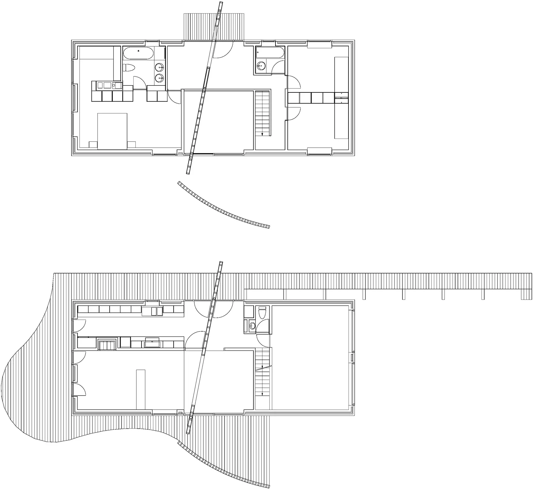
Disposée perpendiculairement à la rue, en léger retrait, cette maison de briques foncées se compose d'un volume de deux niveaux coiffé d'une toiture à deux versants. Un mur oblique la traverse de part en part, selon un axe est-ouest qui définit les fonctions, oriente les regards et génère une continuité entre intérieur et extérieur. Les deux faces de cette paroi sont peintes de couleurs différentes, en mauve et rouge, symbolisant l'Orient et l'Occident. L'intimité des occupants est assurée par la végétation, le relief du terrain, des ouvertures latérales limitées et une paroi courbe en bois qui protège la terrasse des regards.

Anne-Catherine De Bast

Sources
Wallonie nouvelles architectures.