Stade des jeux
Jalon XX

Stades

1906 - 1910 1906 - 1910
Réalisé

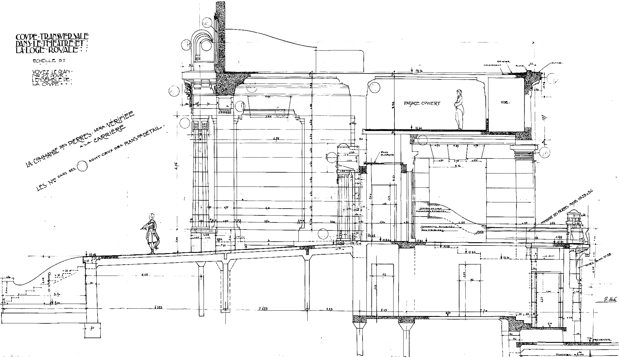
Le Stade des jeux est un complexe comprenant de vastes gradins couvrant un garage, dominés par un promenoir au-dessus d'un tunnel rail-route et par d'impressionnantes tribunes couvertes comprenant une tribune royale encadrée de pilastres décorés surmontés d'une maxime aux résonances olympiques : Ludus pro Patria. 

L'ensemble est construit sur la base d'une ossature en béton armé du système Hennebique et revêtu de parements et décors en simili-pierre avec pièces spéciales en pierre de taille. Les raccords au site sont traités au moyen de murs en pierre calcaire au dessin ample et synthétique, avec, côté Meuse, un grand mur de soutènement correspondant au Théâtre en plein air, et un muret aboutissant à une tourelle au bout de l'esplanade que contournait la route principale, le tunnel faisant office de by-pass. 

La monumentalité non péremptoire est truffée de détails inventifs comme les chapiteaux des colonnes accouplées, l'acrotère de la terrasse supérieure, qui réinventent le langage gréco-romain, ainsi que les courbes des escaliers et des parapets, les ornements de la scène ou de la tribune royale, ou encore les briques de verre allemandes Marke Faust (rarissimes). Prévu pour quatre mille places, terrasse supérieure comprise, l'ensemble comporte un logement de concierge placé sous la tribune royale et est doté de menuiseries de bois simples, mais robuste, et de tourniquets ou garde-corps en fonte de fer adaptés aux foules.

(Voir : La Plaine des jeux ; Théâtre en plein air)

Raymond Balau

Sources
Balau Raymond, «Les abords du Stade des jeux et du Théâtre en plein air de Namur par Georges Hobé (1910)» dans La Lettre du patrimoine, n° 40, 2015, p.5-6.
Balau Raymond, «L'urbanisation de Namur-Citadelle, de Lainé à Hobé : oeuvre inachevée, potentiel sous-estimé» dans Les Cahiers de l'Urbanisme, n° 74, mai, 2010, p.4, 51-64, 102.
Anon, «Le Stade des jeux de Namur» dans Le béton armé. Organe des concessionnaires et agents du système Hennebique, Paris, 13ème année, 1910, p.4-5.