Siège Decomo

Bureaux

2004 2004
Réalisé

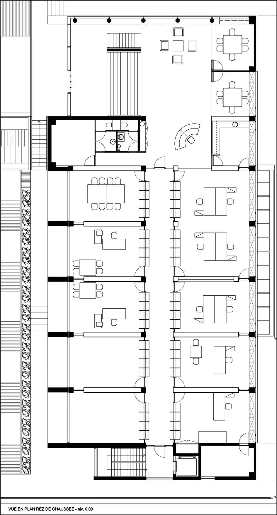
Le siège de l'entreprise Decomo s'implante à la perpendiculaire du boulevard. Sa volumétrie, élégante et sobre, est divisée dans sa longueur en deux parties, la plus grande pour les bureaux, la plus petite, en retrait, pour l'accueil et les circulations verticales. Tirant parti de la déclivité du terrain, l'entrée a été placée à mi-hauteur, entre le showroom, en contrebas, et le niveau de l'accueil et de l'administration. En façade, la partie bureaux est scandée par une alternance de baies profondes et de piliers, rythmés par le contrepoint entre les verticales des éléments portants et les horizontales des pare-soleil. Le hall d'entrée se différencie par son espace à double hauteur et sa façade vitrée. Passé l'entrée, une première série de marches mène à l'accueil, d'où part un escalier très sculptural, aux volées en porte-à-faux, qui invite le visiteur à monter en découvrant le paysage alentour. À l'étage, la partie principale du plateau est organisée en open space.

Roland Matthu

Sources
Archives de AAVO (Atelier d'Architecture Van Oost).