Siège de la Régie des Télégraphes et des Téléphones (RTT)

Bureaux

1956 - 1959 1956 - 1959
Réalisé

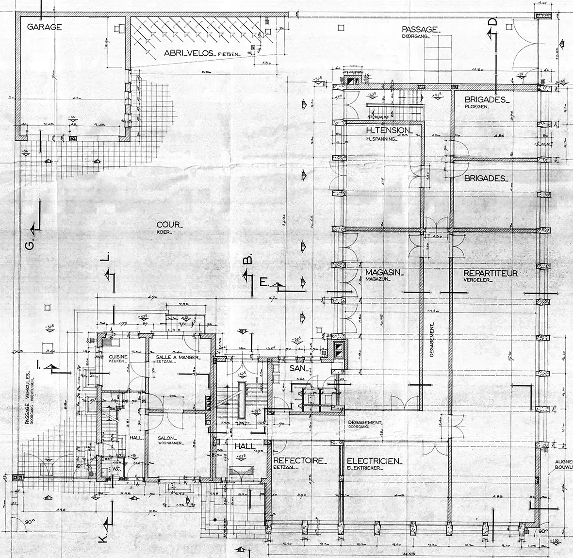
Située dans un quartier résidentiel, cette construction, caractéristique des équipements utilitaires de l'époque, se démarque par son gabarit imposant dicté par ses fonctions. Celles-ci déterminent les solutions différentes des façades et les choix de matériau. Les exigences du programme obligent – pour une partie du bâtiment – à utiliser des plateaux libres de toute contrainte. Des colonnes en béton bouchardé blanc sont donc disposées à l'extérieur sur toute la hauteur du volume. L'entrée est signalée par un auvent soutenu par une colonne de béton en cône inversé. Sur la paroi perpendiculaire à l'entrée, une grande composition décorative en céramique polychrome évoque l'histoire de la téléphonie et du télégraphe. Le hall d'entrée fait face à l'escalier et sépare le corps principal de la conciergerie.

Maurizio Cohen

Sources
Archives communales de Mouscron..