Résidence du Bois de Boulogne
Immeuble à appartements Centres commerciaux
1976 - 1978
1976 - 1978
Réalisé
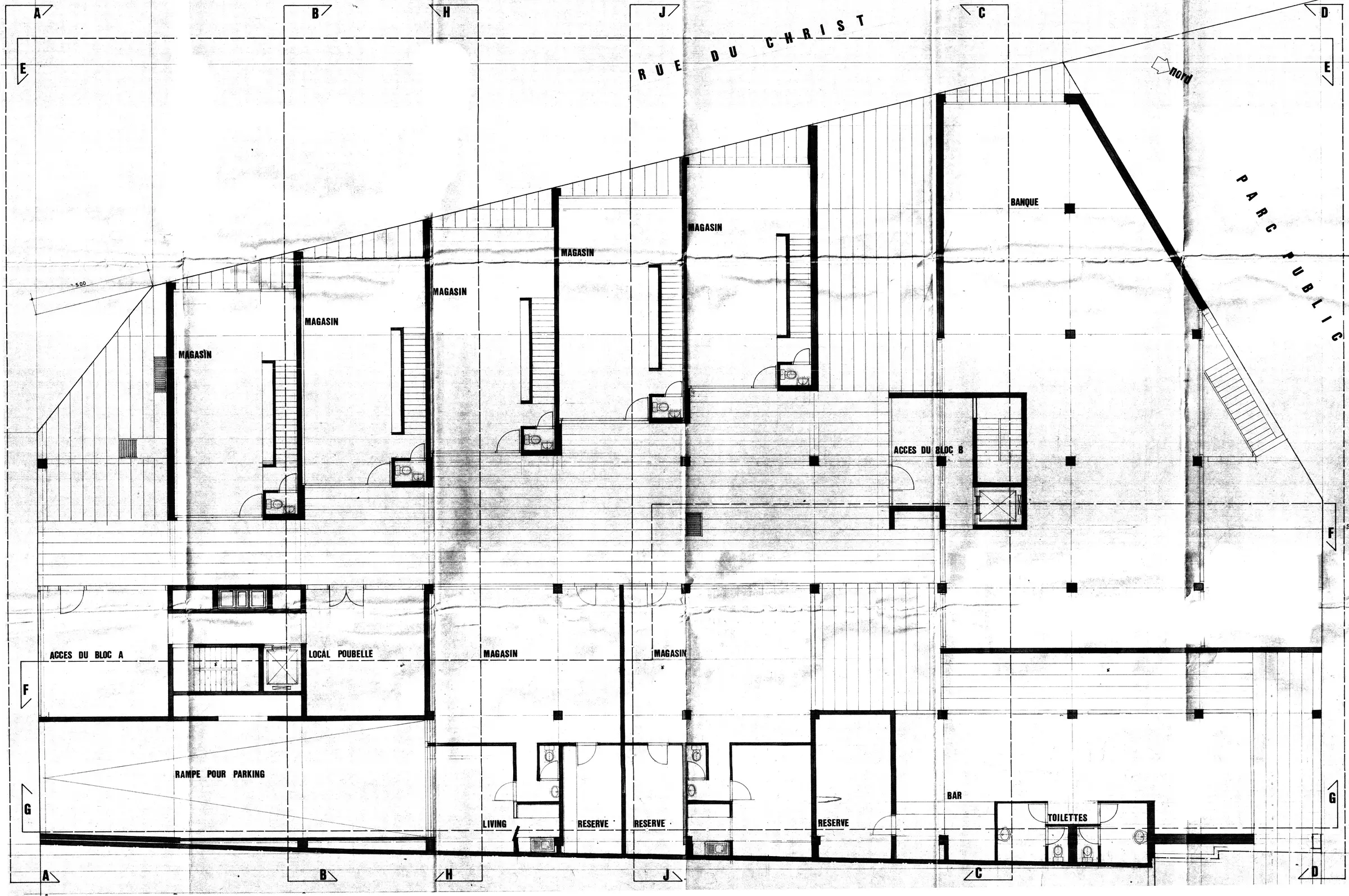
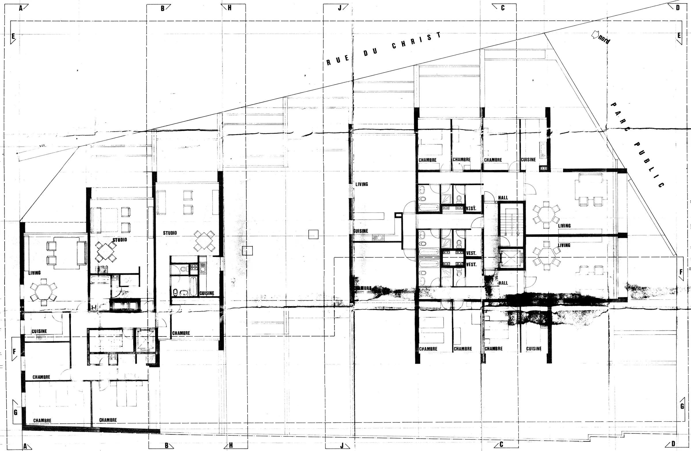
Selon la presse de 1976, réaliser la résidence du Bois de Boulogne, c'est poser les « premières pierres de l'an 2000 ». Jouissant d'une implantation privilégiée qui en fait alors un projet phare de la rénovation du centre-ville, le bâtiment fait table rase de l'ancienne bonneterie Graveline & Dubiez. L'immeuble, comportant trente et un appartements de dimensions variées et une galerie commerçante, s'impose par sa volumétrie massive, composée d'un soubassement à redents et de deux petites tours. La construction, constituée d'un assemblage de planchers et d'éléments de façade préfabriqués dans les usines de l'entreprise locale Ferret, se veut avant tout efficace et économique. Les choix architecturaux posés n'en sont pas moins innovants en matière d'implantation et de programmation. La volumétrie scindée du bâtiment offre une multitude de vues et d'orientations aux appartements, tout en les mettant à distance les uns des autres. La programmation des deux étages inférieurs est interpellante : chacun des commerces est lié par un escalier à un studio situé à l'étage, un dispositif permettant aux jeunes commerçants de l'époque de s'installer à proximité de leur travail. La galerie commerçante a la particularité d'abriter, en plus de l'accès aux commerces, les deux entrées privatives, qui se distinguent par la présence de travertin au sol et par la composition de leurs parois vitrées intégrant les boîtes aux lettres.
Élodie Degrave
| Sources |
|---|
| Losfeld A., «La résidence Le Bois de Boulogne sera terminée le 30 juin 1978» dans Nord éclair, 23 décembre, 1976. |
| Archives communales de Mouscron.. |