Pavillon Tradeco

Bureaux Showrooms Autres bâtiments commerciaux

2015 2015
Réalisé

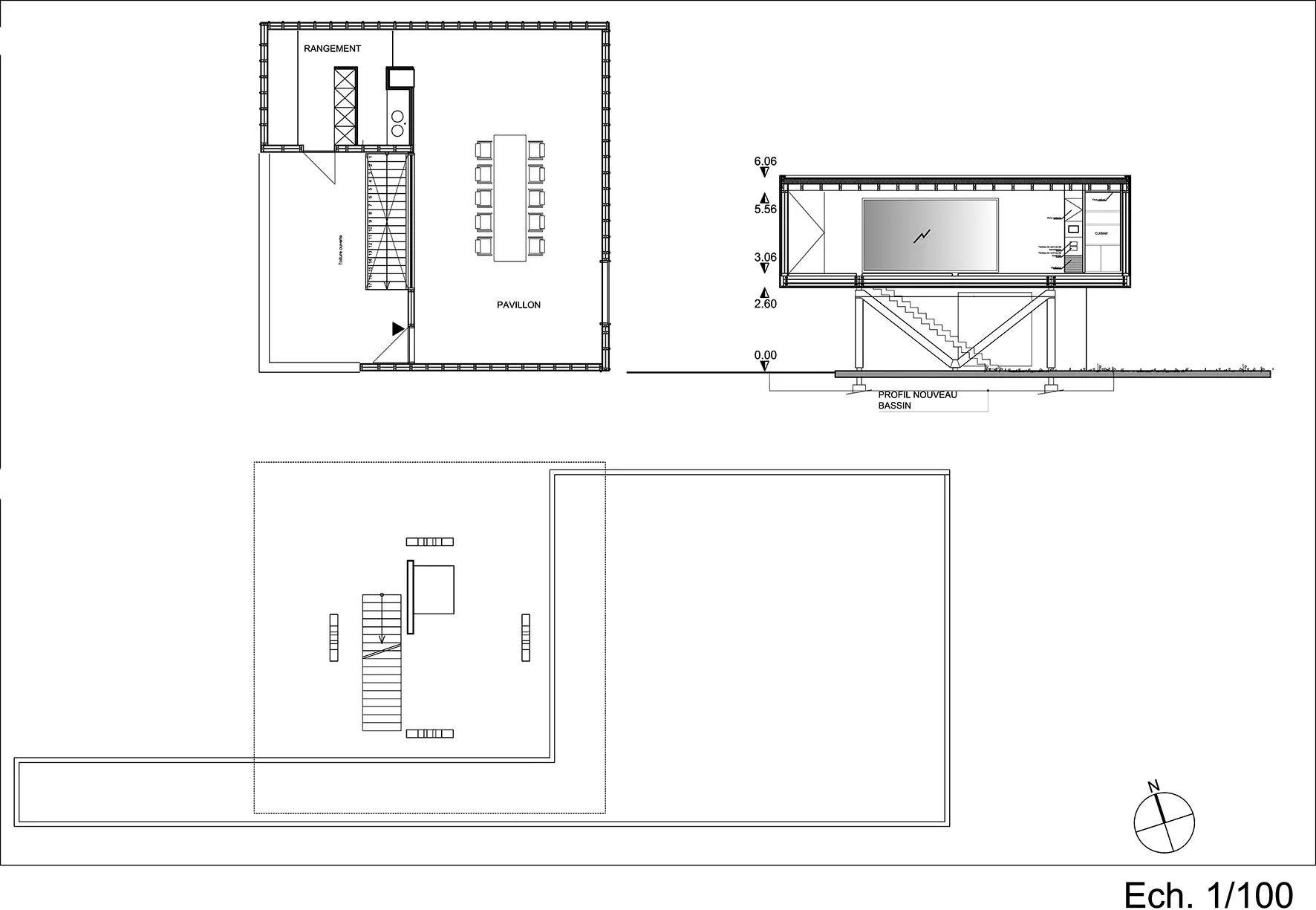
Posé sur quatre appuis en V, ce pavillon noir a été réalisé à l'occasion du vingtième anniversaire des ateliers Tradeco. Il est destiné aux réunions, conférences et projections pour la démonstration de produits des deux divisions de l'entreprise. Il comporte au rez-de-chaussée un espace ouvert sur quatre côtés. Au centre, l'escalier menant à l'étage débouche sur un espace à ciel ouvert qui longe la salle de réunion. Sa paroi extérieure est percée sur deux côtés par une fenêtre en longueur qui se retourne à l'angle et offre depuis la salle un lien visuel avec l'espace extérieur. Dans l'axe de la salle, une longue table de réunion est orientée vers un écran destiné aux projections. Les systèmes constructifs sont représentatifs des savoir-faire de Tradeco : le volume carré de l'étage, construit entièrement en ossature bois, repose sur une ossature métallique assemblée aux quatre points de jonction des piliers en V. Bien isolé par de la laine de bois et alimenté en électricité par des cellules photovoltaïques, le bâtiment est à énergie positive.

Roland Matthu

Sources
Archives de AAVO (Atelier d'Architecture Van Oost).