Maison Van Dorpe - De meester

Habitation unifamiliale

1977 1977
Réalisé

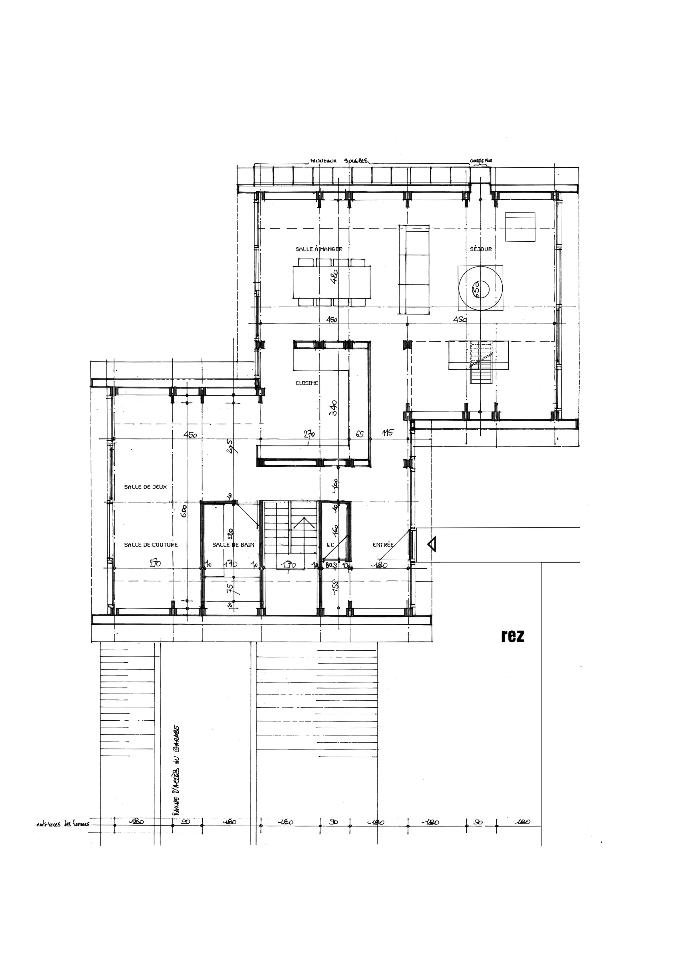
Cette habitation atypique se situe à l'avant-garde contemporaine d'une architecture écologiquement plus responsable. Elle est le fruit d'une recherche poussée qui traduit les aspects structurels, techniques et d'usages de notre temps en une construction simple, dont les espaces généreux sont baignés de lumière naturelle. La répartition astucieuse des espaces de vie, de service et de circulation la rend très flexible à l'évolution d'une famille. Partiellement autoconstruite, ses charpentes sont orientées pour capter l'énergie solaire.

Dimitri Fache

Sources
Archives de Paul Van Dorpe.
Archives de AAVO (Atelier d'Architecture Van Oost).