Habitation Van Braekel
Habitation unifamiliale
1966
1966
1966
1973 - 1974
1973 - 1974
1998 - 2000
1998 - 2000
Réalisé
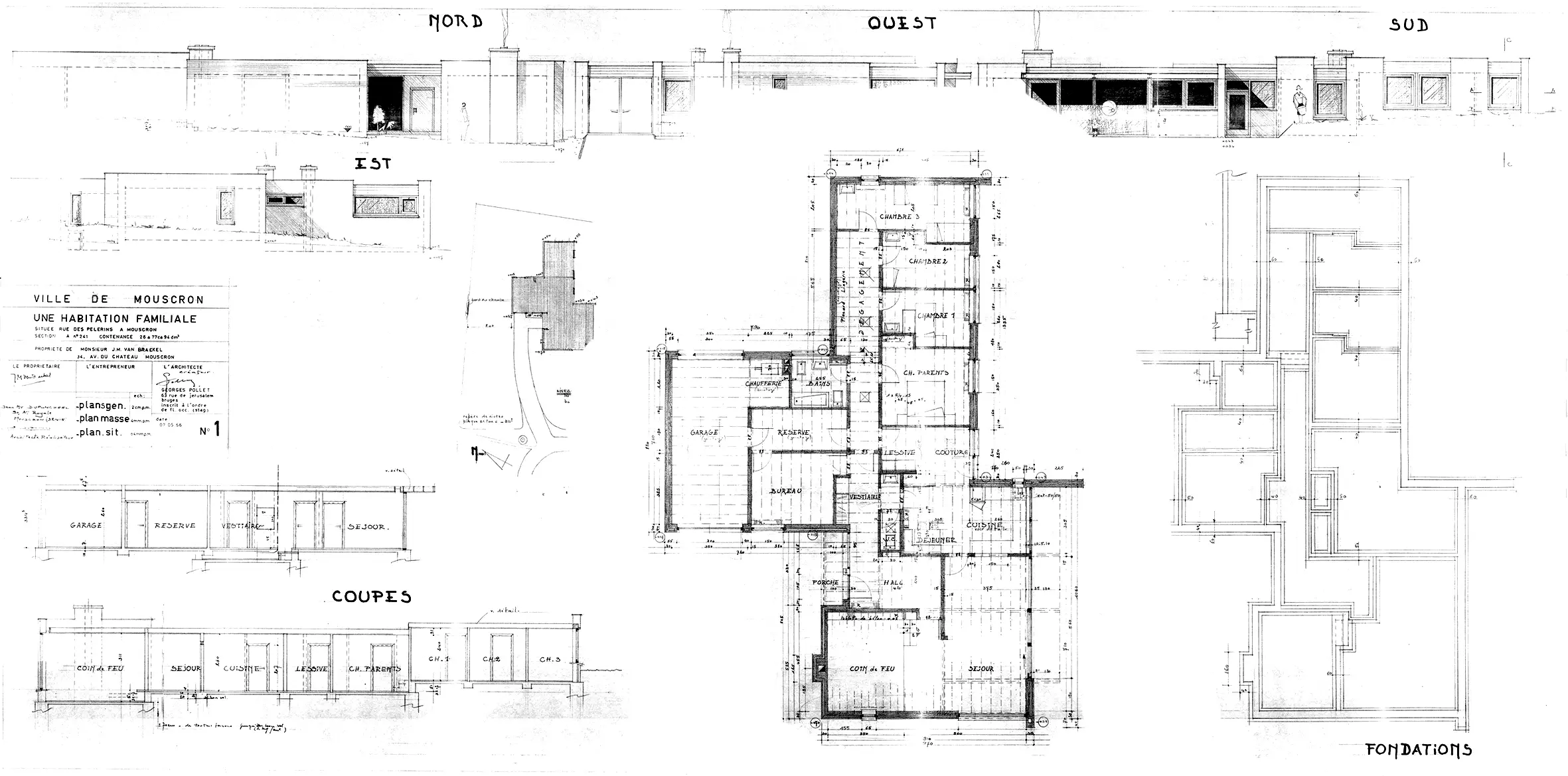
Cette grande villa des années 1960 se conçoit à partir des contraintes d'orientation et de topographie. Trois niveaux viennent scander le plan : le niveau de l'entrée, qui devient le niveau principal de la maison et de la terrasse du séjour orientée au sud, le coin du feu, enterré de 0,5 m, et, enfin, les chambres d'enfants, au niveau de la partie est du jardin. L'écriture est caractéristique d'un modernisme cherchant à donner toute autonomie aux éléments architecturaux premiers que sont le mur, les ouvertures et le toit. Les baies viennent soit se déplier du sol au toit en prenant appui sur un mur perpendiculaire, soit s'organiser en bandeau. Le toit, quant à lui, est contenu et ceint par les murs, et vient se manifester uniquement aux endroits stratégiques que sont les porte-à-faux de l'entrée et de la terrasse du jardin ou encore en couronnement des baies.
Bernard Wittevrongel
| Sources |
|---|
| Archives de Georges Pollet. |