Chapelle du père Schilling

Eglises ou apparenté

1962 1962
Réalisé

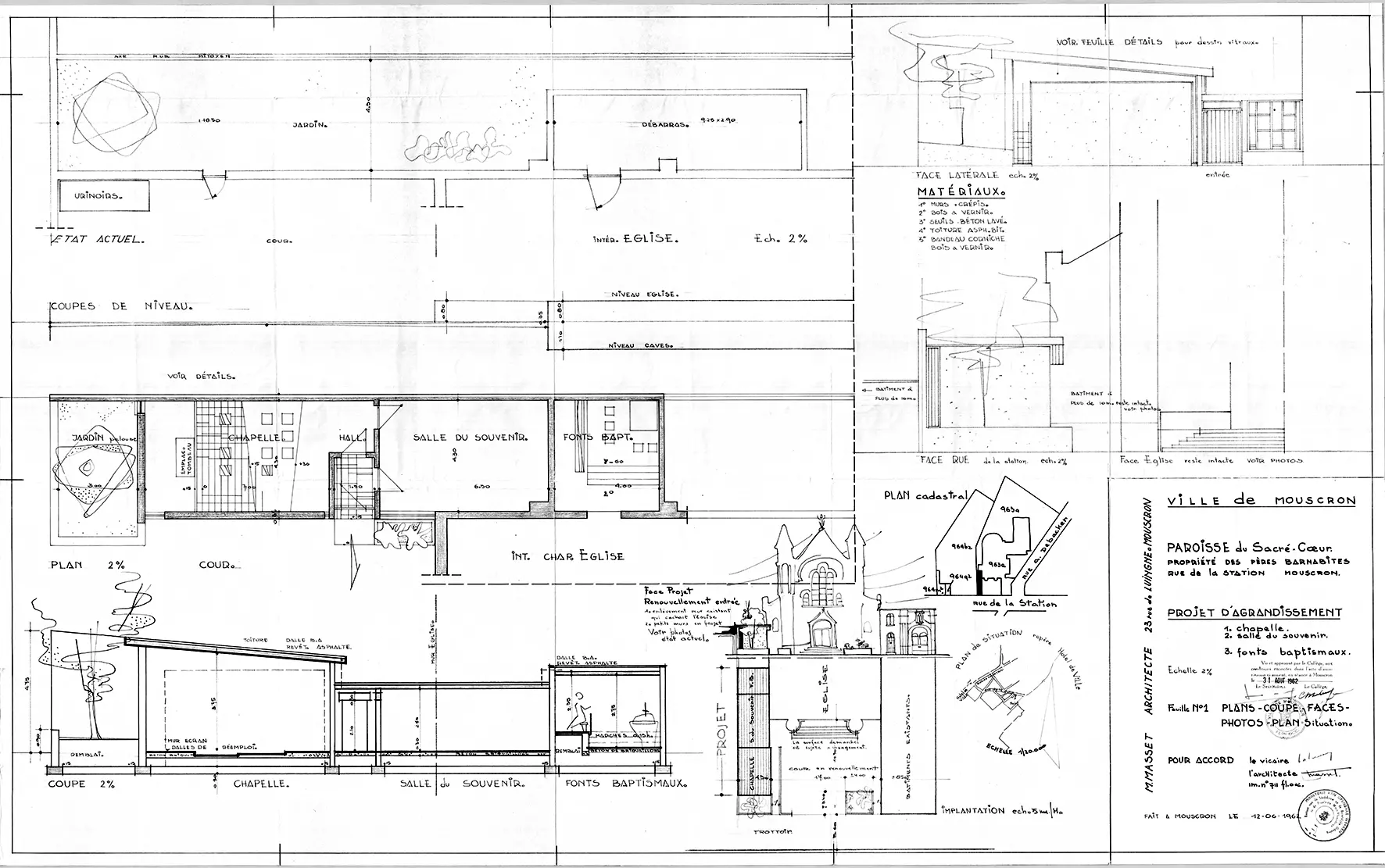
Le père Charles (ou Karl) Schilling était un frère barnabite originaire de Norvège. Arrivé à Mouscron en 1887, il devient très populaire pour son dévouement envers les plus démunis. Cette petite chapelle érigée en sa mémoire sur un flanc du parvis de l'église du Sacré-Cœur est un lieu de prière autonome, mais rattaché à l'église. Il est composé d'une succession de trois pièces reliées à l'intérieur par un chemin. Celui-ci est couvert par un plafond donnant l'impression d'être suspendu et soulignant le parcours. La salle du souvenir et la salle des fonts baptismaux sont éclairées par des coupoles en toiture. Enfin, la chapelle abrite la tombe et une reconstitution de la cellule austère où il vivait. Son expression moderniste se démarque de l'architecture de l'église grâce aux surfaces en béton serties de vitrages colorés et une toiture inclinée en béton brut.

Maurizio Cohen

Sources
Ronlez Audrey, «Le saint de Mouscron en manque de miracles» dans L'Avenir, 10 mai, 2011.
Declercq Sylvestre, Un artiste norvégien converti : le Révérend Père Schilling, barnabite, Bruxelles : Albert Dewit, 1928.
Archives communales de Mouscron..