Cercle ouvrier-Werkerskring

Centres communautaires

1929 - 1932 1929 - 1932 1950 1950
Réalisé

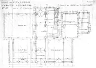
Dans la première moitié du XXe siècle se développe à Mouscron une importante force syndicale liée au monde ouvrier chrétien de la ville. En 1929, les dirigeants du Cercle ouvrier Saint-Joseph décident de transformer l'immeuble du début du siècle qu'ils occupent au n° 50 de la rue Saint-Pierre afin de créer un plus grand équipement pour accueillir les nombreuses associations et activités. Les fonctions accessibles au public sont organisées au rez-de-chaussée tandis que les bureaux sont disposés à l'étage. Une douzaine de groupements occupent alors les bâtiments. L'architecture, élégante et monumentale, est inspirée des courants Art déco, tout en utilisant un langage riche de références régionales. L'implantation du bâtiment, en recul par rapport à la rue étroite, permet de dégager la façade en offrant une respiration à la construction et un plus grand apport de lumière. La composition symétrique est organisée avec six travées de deux étages de grande taille et une travée centrale qui s'affirme par un gabarit plus élevé coiffé d'une tourelle. L'inscription « Cercle ouvrier – Werkers kring », les dates de fondation du syndicat et de la construction du bâtiment couronnent la partie centrale et accentuent la symétrie. Le rez-de-chaussée était animé par les vitrines et les impostes arborant motifs décoratifs et écriteaux d'un café et d'un magasin, Le Bien-Être. En 1968, la façade à rue est transformée et perd une partie importante de son apparat décoratif. Le grand hall d'accès traversait le volume vers l'intérieur d'îlot, côtoyant le grand escalier situées au centre du volume. À l'arrière étaient situées une infirmerie et des toilettes. Un volume abritant l'habitation du concierge est ajouté juste avant la fin des travaux sur le flanc gauche de la façade et est raccordé au bâti existant. Tout en reprenant matériaux et détails du bâtiment principal, Hocepied le distingue en inversant les pentes de la toiture. Pour pallier les nouvelles exigences de la fédération syndicale, un nouvel immeuble, conçu par l'architecte R. Derochette, est construit dans les années 1950 dans le prolongement du bâtiment initial.

Maurizio Cohen

Sources
J.H., «Le Cercle Ouvrier sauvé des ruines» dans L'Avenir, 26 mai, 2016.
Archives communales de Mouscron..
Losfeld Christian, «Note sur Marcel Hocepied architecte mouscronnois» dans Mémoires de la Société d'Histoire de Mouscron et de la Région, n° V, fasc. 2, 1983, p.237-244.