Avenue Louis Desprets

Habitation unifamiliale

1936 - 1937 1936 - 1937 1936 - 1937
Réalisé

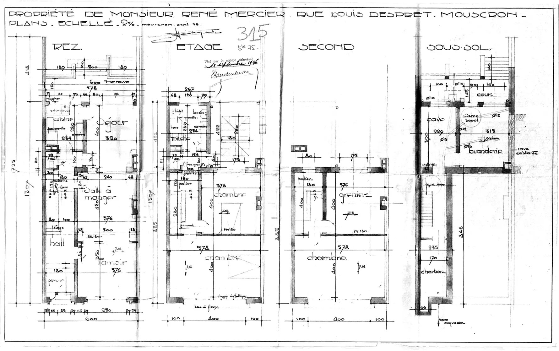
La dénomination de l'avenue est intimement liée à l'histoire de son tracé. Louis Desprets, propriétaire foncier originaire de Mouscron, planifie en 1899 la construction d'une école industrielle sur la place de la Justice, à la croisée de plusieurs rues nouvellement tracées. L'inauguration de cette institution en 1913 donne le coup d'envoi de la densification du quartier qui se poursuit dans l'entre-deux-guerres. C'est dans ce contexte que l'avenue Louis Desprets prend forme, habitée d'un côté seulement, l'autre étant occupé par l'école industrielle qui en fait le coin. Des employés aisés s'y installent en 19361937, comme en témoignent la cohérence architecturale de l'ensemble et la salve de permis de bâtir que la ville traite sur cette période. Une dizaine de maisons se distingue par une expression d'influence moderniste, avec des réminiscences Art déco. L'usage du béton structurel, les toitures généralement plates, la composition épurée des façades ou encore l'accentuation des joints horizontaux dans le parement évoquent un vocabulaire moderne, tandis que l'utilisation du fer forgé, du granito et du vitrail rappelle la prédominance des arts décoratifs dans l'architecture des décennies précédentes. Le n° 50 en est un exemple, associant l'utilisation du vitrail et du fer forgé (signé par le ferronnier d'art Verheust) à une composition de façade horizontale accentuée par deux longues jardinières. Le plan de ces maisons se développe « en enfilade », dédiant le rez-de-chaussée aux pièces de réception propres à la classe sociale des commanditaires : fumoir ou bureau et salle à manger confortable, celle-ci étant accessible par de grandes portes vitrées ornées de motifs géométriques et souvent éclairée par une verrière de même type. Les n° 24 et 26 constituent une exception ; leur disposition d'escalier particulière entraîne une distribution verticale en demi-niveaux lisible dans la façade. La qualité de l'ensemble transparaît enfin dans les dispositifs d'entrée, d'une variété remarquable, à l'exemple des escaliers jumelés aux n° 30 et 32 ou encore du renfoncement en biseau au n° 34.

Élodie Degrave

Sources
Selosse Charles-Clovis, Les rues de Mouscron : origine et signification, Mouscron : Imprimerie Selosse, 1978, p.113-114.
Archives communales de Mouscron..