Maison Cloet

Habitation unifamiliale Bureaux

1987 1987 1987 2006 2006 2006
Réalisé

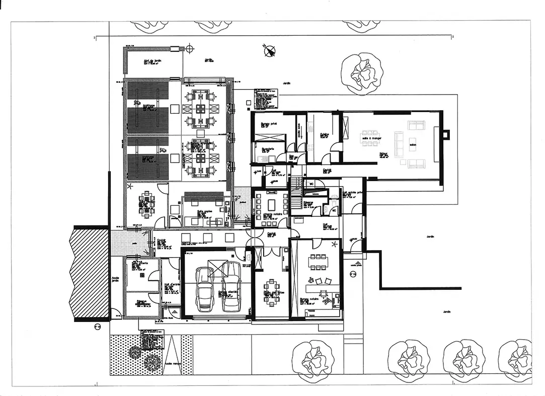
Le projet d'origine comprend au rez-de-chaussée, côté rue, la partie bureaux (étude notariale), côté jardin, les locaux de jour. L'orientation nord-est du jardin, particulièrement défavorable, amène l'architecte à mettre en place un patio côté rue, offrant ainsi la double orientation au séjour. 

L'étage s'élève au-dessus des bureaux et du garage, avec un léger porte-à-faux, marquant la dalle de béton divisant horizontalement la façade à rue. L'étage comprend quatre chambres, une salle de bains et une salle de couture, laquelle se voit offrir un balcon et une fenêtre d'angle reproduisant celle du rez-de-chaussée. Le dessin de façade témoigne de la volonté de l'architecte de laisser les matériaux de construction – brique et béton – s'exprimer, ce qui s'est estompé en peignant, par après, l'enveloppe du bâtiment. 

La maison a connu deux extensions : une relative à l'agrandissement des bureaux à la place du garage par Marc Félix, fils de Paul Félix, et une autre pour l'implantation de nouveaux bureaux à gauche de la première construction et au rétablissement du garage. Cette extension a quelque peu modifié l'esprit du projet par le rajout de matières et de textures à cette construction sobre et rationnelle.

Georges Pollet

Sources
Archives des architectes Courcelles.
Archives communales de Mouscron..