Église paroissiale du Christ-Roi

Eglises ou apparenté

1936 - 1937 1936 - 1937
Réalisé

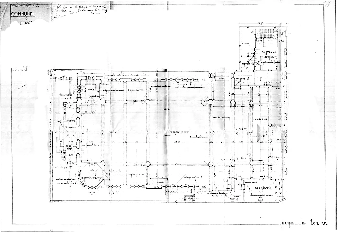
Construite dans un quartier ayant connu une forte expansion entre 1920 et 1940, cette imposante église, située sur la frontière avec la France dans une rue large à fort trafic, peut accueillir un millier de personnes. La paroisse est fondée en 1932, mais la construction du nouveau bâtiment ne commence qu'en 1936 sous l'impulsion de l'abbé Paul Hocepied qui confie ensuite le chantier à son neveu. 

La construction se déroule en une seule année. Le langage architectural s'inscrit dans le courant théorique des écoles Saint-Luc : favoriser le développement d'une architecture néogothique comme forme d'expression chrétienne, faire référence aux monuments de l'art national et n'utiliser que des matériaux locaux adaptés au climat. Ceci implique de se positionner dans une continuité historique considérée rationnelle et appropriée. En ce sens, la modernité de cette réalisation se situe dans le renouveau d'un langage hérité du passé au travers de nouvelles techniques de construction – l'ensemble de la structure est en béton – et des solutions innovantes comme la voûte constituée de plaques de fibres de bois isolantes Tentest protégées par des cloisons d'Eternit. 

Le cahier des charges stipule l'obligation de n'utiliser que des matériaux nationaux. En ce sens l'église regorge d'une variété surprenante de pierres, briques, céramiques, essences de bois provenant de l'ensemble du pays : brique jaune de Nieuport, moellons de l'Ourthe, céramique verte de la Lys, cérabric d'Hautrage, ardoise de Warmifontaine... On constate aussi l'influence de l'architecte et moine français Dom Bellot, figure majeure du renouveau de l'art de l'église, pour l'aisance à articuler les éléments de l'architecture et la richesse de l'apparat décoratif d'inspiration Art déco. 

L'intérieur est une grande nef dégagée et élancée se terminant par un chœur entouré d'un déambulatoire. L'espace de l'autel – en marbre noir et bleu – est simple et solennel, encadré par trois baies ogivales qui s'ouvrent vers le déambulatoire accueillant un chemin de croix sculpté en pierre et encastré dans la paroi. De grands vitraux aux motifs figuratifs et géométriques garantissent un apport significatif de lumière naturelle.

Maurizio Cohen

Sources
Losfeld Christian, «Note sur Marcel Hocepied architecte mouscronnois» dans Mémoires de la Société d'Histoire de Mouscron et de la Région, n° V, fasc. 2, 1983, p.237-244.
Deroubaix Jean, «Notice historique sur la paroisse du Christ-Roi et le quartier de la Gare d’Herseaux» dans Mémoires de la Société d'Histoire de Mouscron et de la Région, n° V, fasc. 2, 1983, p.219-236.
Deletang Maurice, «L’Église du Christ-Roi à Herseaux : arch. Marcel Hocepied» dans Bâtir, n° 67, juin, 1938, p.268-269.