Institut Technique de Morlanwelz (ITM)
Jalon XX
Ecoles secondaires
1938
1938
1984
1984
1984
1984
1984
2014
2014
2014
2014
Réalisé
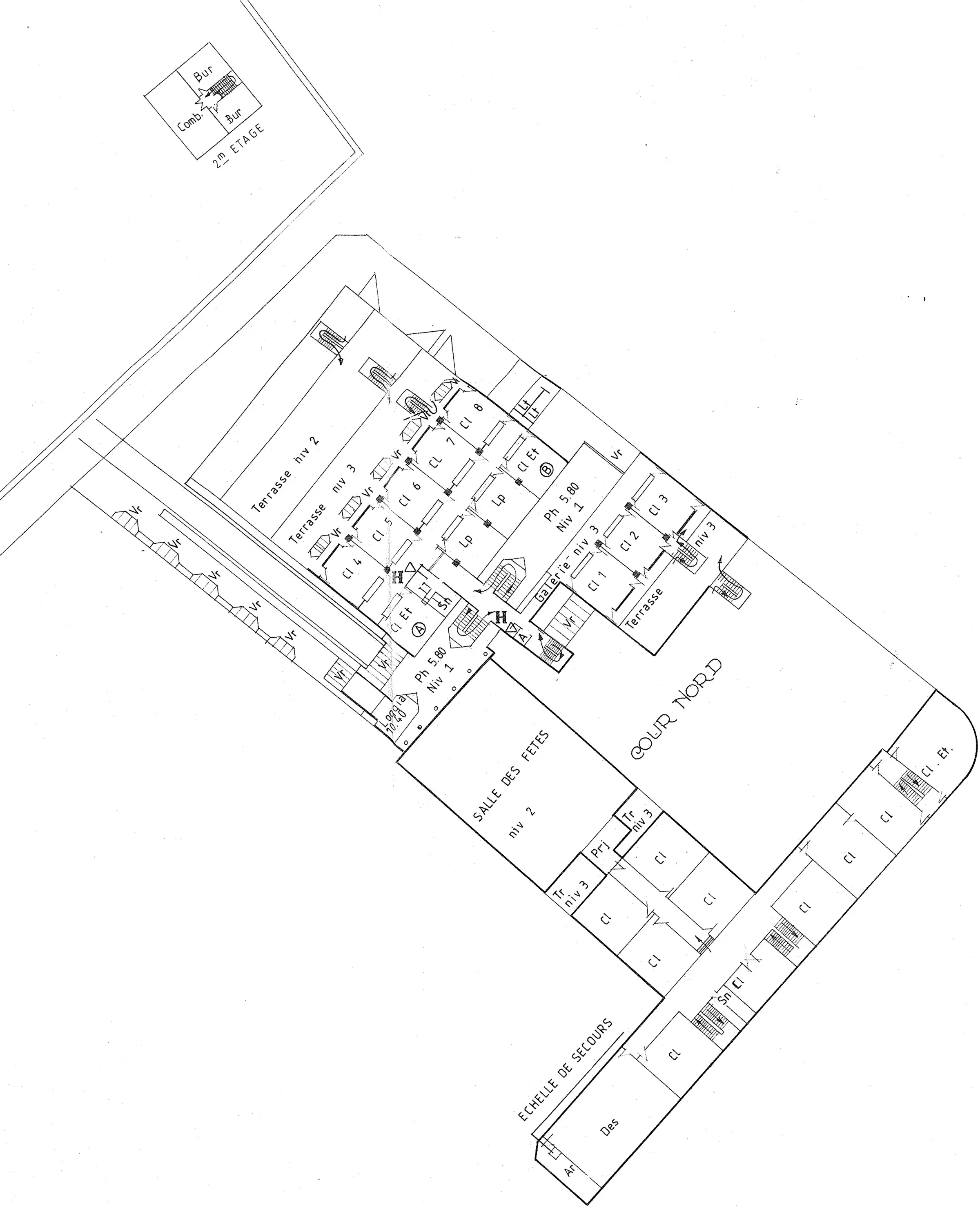
Fondée en 1871 par le bourgmestre Arthur Warocqué et occupant aujourd'hui un îlot entier, l'École technique offre, sur un seul site, une synthèse unique en son genre de l'évolution de l'architecture scolaire en Belgique. Elle se répartit dans six bâtiments datant d'époques différentes, dont se dégagent trois interventions remarquables.
Le bâtiment des années 1930 de l'architecte Marcel Simon, auteur de nombreux édifices publics dans la région de Charleroi, adoptant l'écriture des meilleurs équipements modernes de la région, esquisse deux cours intérieures délimitées par deux extensions. Une grande halle, accueillant de nouveaux ateliers, referme la cour sud. Éclairée par une toiture à sheds, elle présente une façade en briques rouges couronnée d'un fronton surbaissé (avenue L. Moyaux).
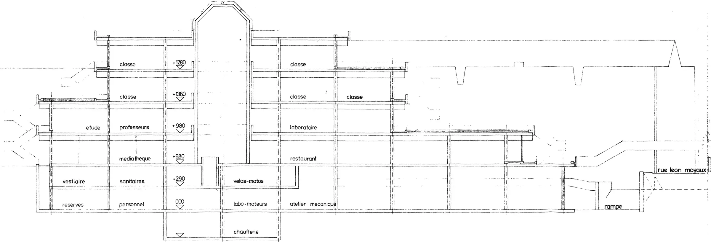
Dans les années 1980, le groupe AUSE – principalement actif à Liège et à Verviers – réalise ici, dans un questionnement brillant du postmodernisme, une nouvelle aile et un réfectoire fermant la cour nord et s'étageant en terrasse à l'arrière de l'îlot. Les niveaux de classes sont distribués par un escalier central traversant l'édifice et recouvert d'une verrière qui distille une lumière diffuse. Les murs porteurs, apparents et peints dans des couleurs primaires, sont en maçonnerie de béton.
À l'intérieur, les menuiseries et le mobilier d'origine, en bois naturel, sont intacts. Les escaliers de secours, le système de distribution central et les garde-corps des étages, réalisés en béton apparent, conservent les marques des lattes de coffrage. Joint au traitement de la lumière et à la configuration des circulations, ce choix de matériaux confère au hall un caractère urbain approprié à sa position dans l'ensemble du complexe.
À l'intersection des trois premiers bâtiments, une passerelle rejoint les aménagements les plus récents installés de l'autre côté de la rue Moyaux, dont le Centre de technologies avancées des métiers du bois (2014), inséré entre la voirie et l'atelier de maçonnerie du fond de parcelle.
Exécuté par la jeune agence bruxelloise a practice, son volume compact témoigne de la maîtrise d'un langage sobre et radical : encadré de deux pieds en béton préfabriqué, la grande pièce centrale est couverte de lamibois peints en noir courant jusqu'aux baies extérieures.
Déborah Levy
| Sources |
|---|
| Archives de a practice. : Dossier ITM. |
| Jouret Alain, Petite histoire d'une grande école : l'Institut Technique de Morlanwelz, Jumet, IPH Éditions, 2005. |
| Adnet (M.), «Les Ateliers du Musée professionnel de l'Etat à Morlanwelz» dans L'ossature métallique, n°5, septembre-octobre, 1933, p.208-210. |