École communale Roosevelt - Académie de musique
Autres bâtiments d'éducation Ecoles maternelles Ecoles primaires
1952
1952
1952
Réalisé
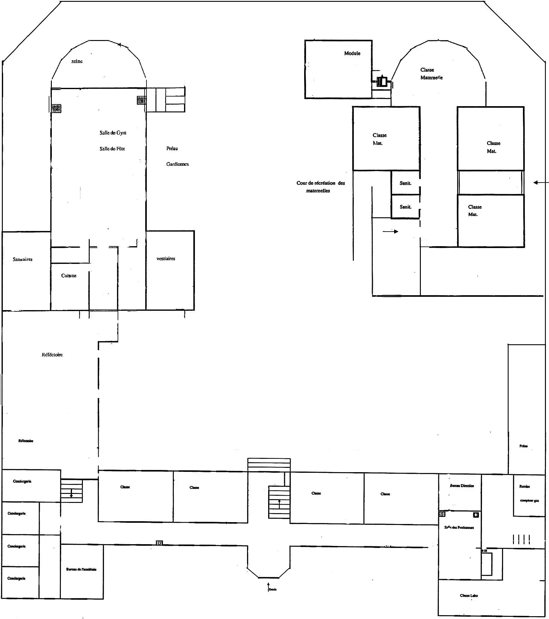
L'école est implantée sur l'intégralité d'un îlot s'imposant et faisant front à une place arborée et à un bâti continu.
À l'arrière du bâtiment principal datant de la fin du XIXe siècle (classes primaires), l'extension en briques jaunes se compose de deux ailes parallèles dont les abouts sont terminés par deux élégantes rotondes implantées en vis-à-vis : celles-ci accueillent, d'un côté, les classes maternelles et, de l'autre, une salle polyvalente, la conciergerie et le préau (transformé ultérieurement en réfectoire).
Les formes cylindriques ont été choisies par les architectes afin d'y intégrer une salle de spectacle et une salle de jeux où le coin n'existe pas. Le jeu volumétrique et le traitement de l'extension, tout en permettant la création d'espaces verts et une cour centrale séparée en deux zones d'âge, expriment, par les toitures-terrasses, les baies horizontales et l'auvent couvrant l'une des entrées, des réminiscences de l'architecture moderne telle qu'on la concevait dans l'entre-deux-guerres.
Dominique Gluck et Isabelle De Smet
| Sources |
|---|
| Archives de l'école Roosevelt : Plan dévacuation. |