Siège de la Société Générale de Banque
Jalon XX
Banques
1966 - 1969
1966 - 1969
1966 - 1969
1966 - 1969
Réalisé
En 1966, la société Générale de Banque invite six bureaux d'architecture à un concours d'idées pour son nouveau siège à Mons, à l'emplacement des anciennes brasseries Caulier. sont conviés les architectes Denis, Guchez, Marin, Boulangier, Godart et Jacques Dupuis.
Il s'agit d'un projet ambitieux pour un siège de prestige d'environ 10 000 m² distribués sur huit niveaux hors terre plus deux niveaux enterrés. Dupuis, associé à Bontridder, l'emporte avec une proposition qui adopte un parti dont l'expression architecturale leur est inhabituelle.
Le vocabulaire employé tient au changement d'échelle et s'apparente aux exemples de l'architecture internationale contemporaine. Il apparaît en rupture par rapport au lyrisme des projets domestiques de ces auteurs. Pour la réalisation, ils s'associent avec Henri Guchez qui dispose d'un des bureaux les mieux équipés et efficaces de la région.
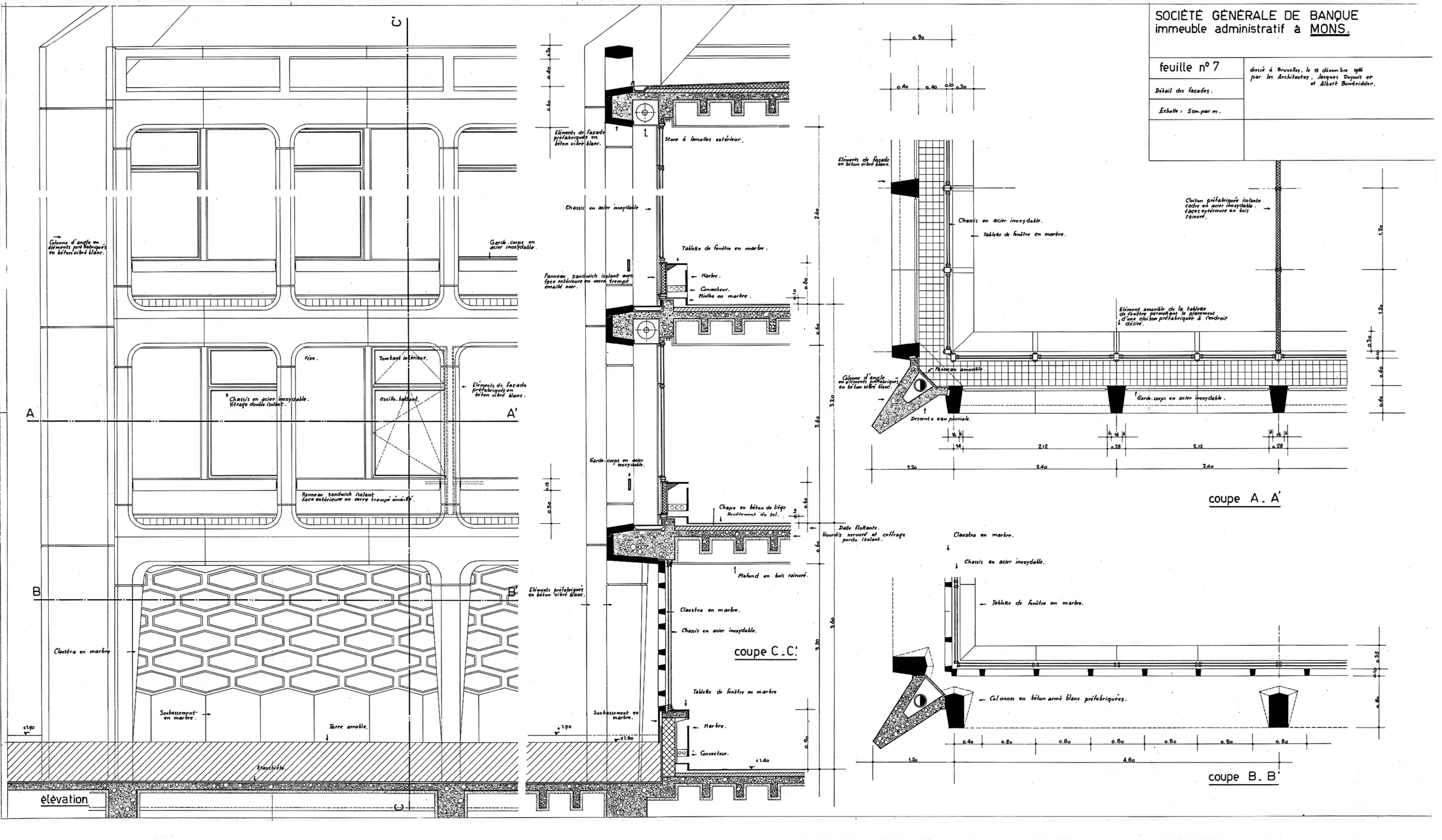
Dès le concours, ils proposent une structure apparente en béton vibré qui englobe le volume parallélépipédique vitré de la banque, situé en retrait. Cette résille, sculptée et élégante, permet de protéger les façades – sans diminuer l'apport de lumière – et de dégager les plateaux de l'emprise structurelle. Le but principal est aussi d'utiliser le maximum d'éléments standardisés et préfabriqués.
Le bâtiment est implanté sur un socle pour mieux articuler les fonctions d'accès, valoriser le volume et diminuer l'impact de la nappe aquifère. Les aménagements intérieurs, en partie modifiés, luxueux et raffinés, témoignent également de la maîtrise de Dupuis et Bontridder.
Maurizio Cohen
| Sources |
|---|
| Fonds Jacques Dupuis : Dossier Siège de la Société Générale de Banque, Archives et bibliothèques d'architecture de la faculté d'architecture de l'ULB. |
| Thomaes Jan & Cohen Maurizio, Jacques Dupuis, l'architecte, Bruxelles, La lettre volée, 2000, p.272-273. |
| «Inventaires» sur le site Jacques Dupuis, en ligne http://www.jacquesdupuis.be/pg/archi/inventaire.html, consulté le 08/11/2013. |