Maison Ollinger-Bertrand
Habitation unifamiliale
2000 - 2002
2000 - 2002
2000 - 2002
2000 - 2002
Réalisé
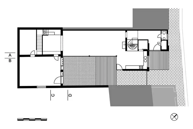
Le terrain s'inscrit en mitoyenneté entre un long bâtiment des années 1950 et une succession de petites maisons ouvrières du début 1900. situé à une rupture d'alignement du front bâti, il contient en fond de parcelle un ancien atelier de verrerie désaffecté.
Le projet profite de ces contraintes et invente un univers spatial protégé et singulier. L'atelier existant, transformé, est agrandi vers la rue par une extension ayant deux gabarits différents et s'articulant autour d'un patio. Le front à rue est refermé par deux volumes, dont le décalage permet de rattraper la rupture d'alignement et de valoriser l'accès à la maison. Il sert aussi à dégager la vue de l'ancien atelier et à faire entrer la lumière dans le patio.
Le mitoyen de la maison ouvrière est une grande masse aveugle. Pour conserver la force de sa présence dans la composition, elle est touchée discrètement avec des éléments légers du nouveau projet : la toiture et le grillage blanc du carport. La transparence de cet espace contraste avec les façades enduites et sculptées par les ouvertures.
Le volume principal de l'extension est essentiel ; il est composé d'une structure métallique qui supporte une toiture plate et d'une façade vers le patio complètement vitrée. Cette solution renvoie aux expériences américaines des Case Study Houses, marquées par la continuité visuelle où les espaces dialoguent dans une rationalité rendue évidente par la clarté des dispositions. Par exemple, le carport participe à l'espace domestique tout en étant un lieu intermédiaire entre l'habitation et la rue.
Maurizio Cohen
| Sources |
|---|
| Witkowska Barbara, «Art de vivre en mouvement» dans Le Vif L'Express, 7 mars, 2003. |
| Architecture in Detail, Rehabilitar Hoy, Barcelone : Instituto Monsa de Ediciones, S.A., 2005. |
| «Maison Ollinger-Bertrand» sur le site Matador, en ligne http://www.matador.be/fr/projects/10/47/-Maison-Ollinger-Bertrand, consulté le 13/11/2013. |
| Atelier d'architecture Matador, Atelier d'architecture Matador, Dossier Architecte - Maison Ollinger-Bertrand, Matador. |
| Hustache Anne, «Architecture moderne et contemporaine à Mons» dans Les Nouvelles du Patrimoine, n° 97, juillet-août-septembre, 2002, p.17-20. |