Maison Jottrand

Habitation unifamiliale

1954 1954
Réalisé

Cette maison a une largeur de façade de 16 m, assez inhabituelle dans le parcellaire urbain montois. Il s'agit d'une des premières habitations modernistes réalisées sur les grands boulevards avec sa voisine. .

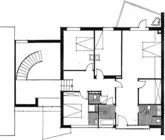
Développée sur deux niveaux, sa distribution découle d'un programme fondé sur les espaces de réception. L'entrée est située dans un volume plus petit et en retrait par rapport au corps principal. On y accède par un escalier partiellement couvert d'une toiture ajourée qui renforce la dimension sculpturale de la composition. Du hall, on accède au jardin ou à l'étage sans passer par les pièces de vie du rez-de-chaussée. 

Le niveau enterré, destiné au garage et aux espaces techniques, est en creux par rapport aux étages supérieurs, créant une zone d'ombre qui élance le volume. Au sommet, un auvent en béton se détache comme une corniche flottante qui protège la façade et stabilise la composition. Cet artifice a disparu en 1991 lors de l'ajout d'un étage supplémentaire et d'une toiture en pente, lesquels dénaturent l'équilibre initial.

Maurizio Cohen

Sources
Fonds Jacques Dupuis : Maison Jottrand, Archives et bibliothèques d'architecture de la faculté d'architecture de l'ULB, Archives et bibliothèques d'architectures de l'Université Libre de Bruxelles.
Deffet É., «À Mons, la maison Dupuis a perdu son âme» dans Le Soir, 8 août, 1991.
Bontridder Albert, «Jacques Dupuis où l'architecture perdue et retrouvée» dans Architecture, n° 39-40, 1961, p.751.
Thomaes Jan & Cohen Maurizio, Jacques Dupuis, l'architecte, Bruxelles : La lettre volée, 2000, p.168-170.
«Inventaires» sur le site Jacques Dupuis, en ligne http://www.jacquesdupuis.be/pg/archi/inventaire.html, consulté le 08/11/2013.
Mons, coll. Patrimoine architectural et territoires de Wallonie, Bruxelles, Mardaga, 2011.