Maison Huart

Habitation unifamiliale

1964 - 1966 1964 - 1966 1964 - 1966
Réalisé

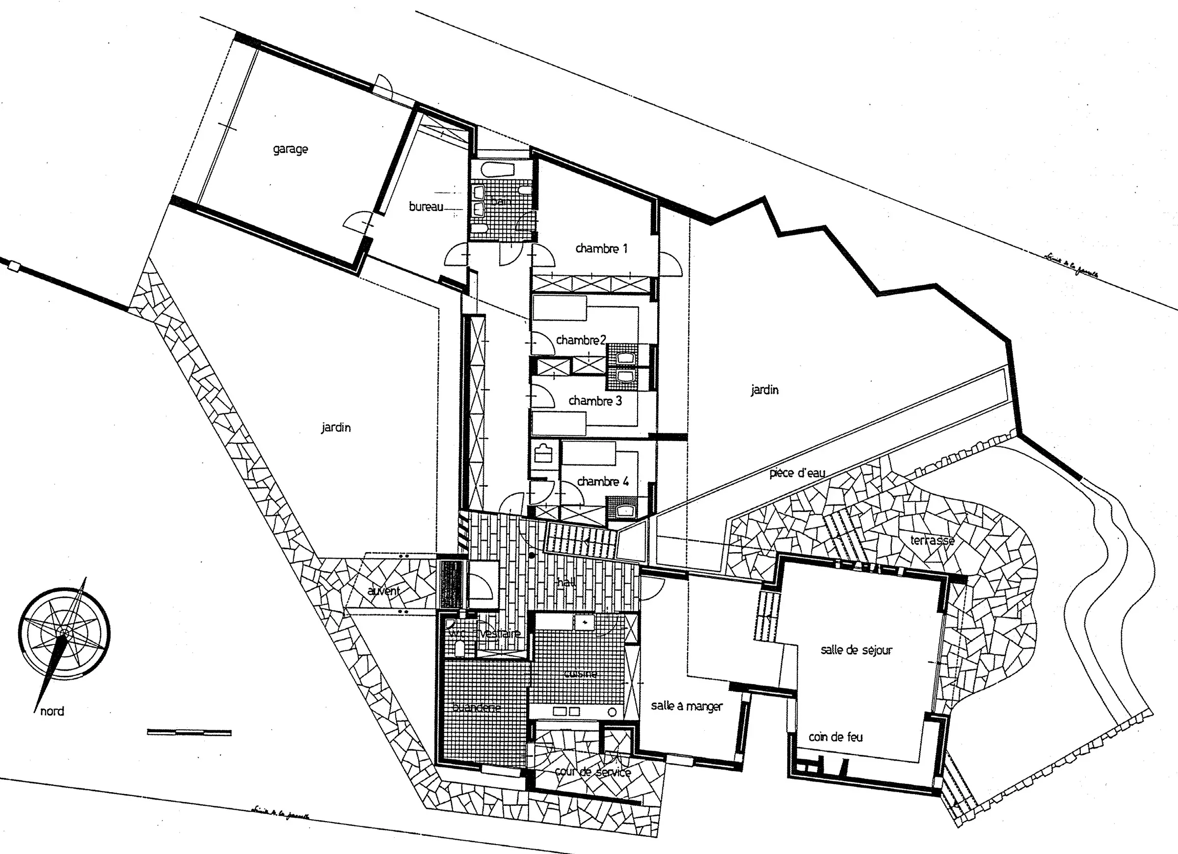
L'ingénieur André Huart achète en 1964 une petite parcelle dans un nouveau lotissement à l'est de Mons. Le terrain de 85 m de profondeur et de 32 m de largeur se rétrécit jusqu'à 13 m à l'arrière. La rue est orientée nord-sud, le terrain s'étend en longueur vers l'ouest. 

Huart rencontre Jacques Dupuis grâce à un ami commun, l'artiste Georges Boulmant. Le projet est rapidement conçu, l'avant-projet date du mois d'août 1964, les dessins d'exécution de novembre. La maison est terminée en 1966. Huart prend part activement à la phase de conception et de suivi du chantier dont il rédige les rapports. 

Le volume est le résultat d'une recherche plastique sur la relation entre la couverture et le sol que Dupuis expérimente dans de nombreux projets domestiques. Il emploie deux hautes toitures anguleuses avec des pentes différentes qui marquent la différence entre les espaces de jour et de nuit. Le système de toiture est trompeur : les faîtes ne sont pas horizontaux, parce qu'ils ne sont pas positionnés perpendiculairement à la direction de la pente du toit. Un auvent saillant, appuyé sur des profils tubulaires, indique l'entrée. Le niveau du sol du salon est abaissé de 60 cm sous la pente douce du toit. La terrasse suit cette dénivellation. Le plan présente une série de pliages qui garantissent une grande aisance dans les circulations et montre le talent de Dupuis pour la mise en scène. La partie plus haute du jardin, devant les chambres à coucher, est bordée sur le côté méridional d'un mur de jardin qui suit une ligne brisée. Cet artifice permet de dilater la profondeur de champ visuel et de déformer les proportions de l'espace extérieur. 

Entre les deux ailes de la maison, en biais, se trouve un plan d'eau de 13 m de long. L'aménagement fait preuve d'un grand souci du détail : le vitrail à côté de la porte d'entrée et la balustrade de l'escalier de la cave en acier inoxydable poli, le chaume japonais du séjour, le bar entre la salle à manger et le salon, le lustre en laiton, la table de verre du salon sur un support élégant en merisier. Le vitrail jaune-rouge dans la façade sud du coin salon et la fresque dans les mêmes couleurs de l'autre côté de la cheminée sont l'œuvre de Boulmant. 

Vendue en 2008, la maison a subi des transformations qui dénaturent les qualités initiales.

Maurizio Cohen

Sources
Fonds Jacques Dupuis : Dossier Huart, Archives et Bibliothèques de la Faculté d’architecture de l’ULB.
Sabau-Dupuis Madeleine & Warzée Jean-Jacques, Jacques Dupuis – Architecte prix Horta 1982, Mons, 1987.
Thomaes Jan & Cohen Maurizio, Jacques Dupuis, l'architecte, Bruxelles : La lettre volée, 2000, p.302-304.
«La maison Huart» sur le site Jacques Dupuis, en ligne http://www.jacquesdupuis.be/pg/archi/w6-huart.html, consulté le 13/11/2013.
«Inventaires» sur le site Jacques Dupuis, en ligne http://www.jacquesdupuis.be/pg/archi/inventaire.html, consulté le 08/11/2013.