Maison Cornez
Jalon XX

Habitation unifamiliale

1947 1947
Réalisé

La maison se démarque par une esthétique dépouillée, empreinte de vocabulaire moderniste, voire puriste. C'est l'aboutissement de la période cubiste de l'architecte. En effet, dans l'après-guerre, la carrière de René Panis prend une nouvelle direction. Il s'oriente vers des projets de plus grande envergure où il peut exercer ses qualités d'urbaniste. 

Selon Renaat Braem, confrère apprécié : « La maison du boulevard Kennedy à Mons montre un saut en avant d'une esthétique se rattachant au fonctionnalisme, mais montrant une composition plastique volontaire de pleins et de vides. » Cette habitation mitoyenne, implantée à front d'alignement, s'élève sur quatre niveaux. 

La façade remarquable montre une composition maîtrisée. L'enduit de couleur gris clair lisse et détache les volumes. Ici, la plastique de façade prime sur l'esthétique des détails. La travée verticale de l'escalier, s'exprimant en retrait, est échelonnée d'éléments vitrés et pleins. Elle est équilibrée par l'horizontale de la baie à l'angle libéré. Minimaliste et osée, sans élément d'appui apparent, cette baie apporte une orientation plus favorable vers l'est et élargit considérablement le champ visuel depuis le séjour. Cette seule baie transparente contraste avec les baies translucides des autres locaux de service. La saillie de la toiture et l'encorbellement protecteur de la porte d'entrée sont les seuls éléments sortant du plan de la façade. 

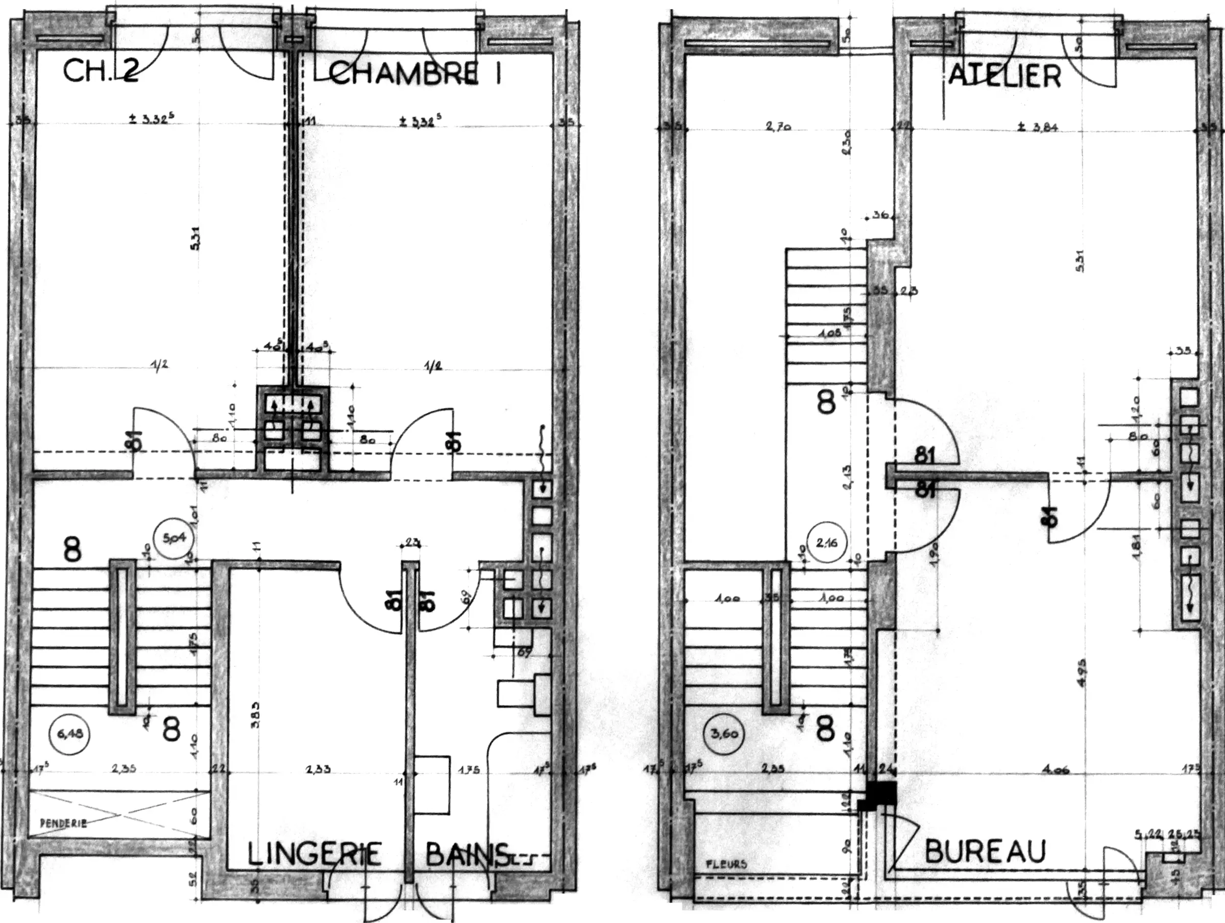
Les châssis gris foncé sont métalliques, leur profil est discret. Le jeu subtil des divisions horizontales et verticales des portes d'entrée et du garage assure un rythme et la protection nécessaire à la situation. Bien qu'initialement prévue avec une fonction bureau/atelier, la maison est finalement affectée à l'habitation seule. Le rez-de-chaussée de faible hauteur comporte le garage-buanderie. Le séjour au premier est traversant ; les quatre chambres occupent les deux derniers étages et s'ouvrent vers le jardin au sud. 

Dominique Gluck

Sources
Colin Benoist, René Panis, Architecture, urbanisme, rimes échappées, p.21-22.
«L'architecte-urbaniste René Panis (Liège 1910-Mons 1987)» dans Les Cahiers de l'Urbanisme, n° 74, mai, 2010, p.27.
«René Panis, numéro spécial» dans Architecture et vie, n° 21, mars, 1987.
Piérard Christiane, De l'éclectisme au post-modernisme. Deux cent cinquante ans d'architecture à Mons, Mons, 2012.
Mons, coll. Patrimoine architectural et territoires de Wallonie, Bruxelles, Mardaga, 2011.
Commune de Mons, Section contemporaine, Autorisations de bâtir (1816-1961), Archives de l'État à Mons, n° AEM.01.168/2586/12953, Mons, 1947.