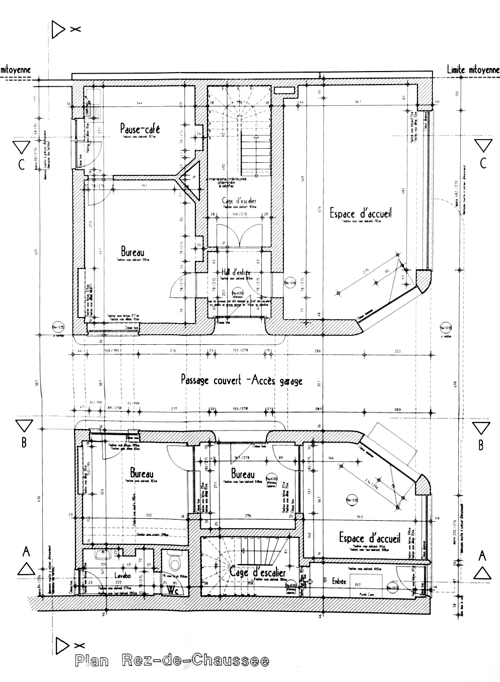
La large parcelle cadastrale permet de construire ce large immeuble de rapport, dont l'originalité du programme mixte réside dans la création d'un vaste garage en arrière-cour et d'une station-service en façade, choix commercial plutôt opportun sur ce boulevard périphérique. 

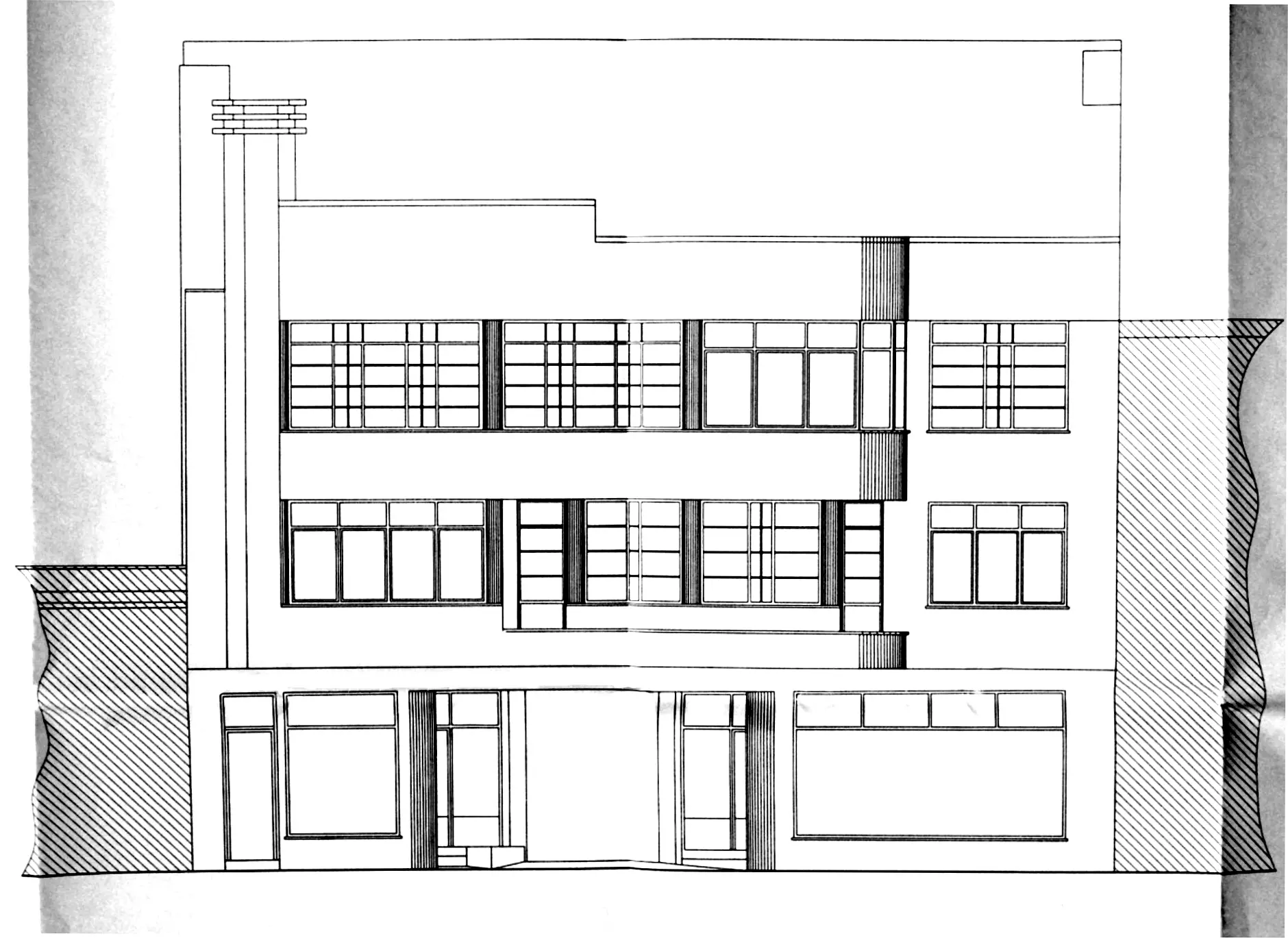
La construction en béton enduit façonne le recourbement sobre et plastique de cette façade qui n'est pas sans rappeler le dessin des paquebots, pour distinguer, côté rue, la présence de deux appartements à chaque niveau et découper de grandes baies lumineuses bénéfiques aux espaces de vie. La ligne droite de la corniche supérieure trace un profil à gradins dont la dynamique s'achève à gauche dans le couronnement de la haute cheminée. 

La nature des réaffectations récentes (garage de la police, agence de location de voitures) use avec à-propos des fonctions, espaces et lignes organiques qui symbolisent le machinisme du rêve américain, rappelant de façon opportune l'essor de l'automobile dès les années 1930.

Anne Deprez