Habitation Meunier-Kanabus
Jalon XX

Habitation unifamiliale

1982 1982 1982 1982
Réalisé

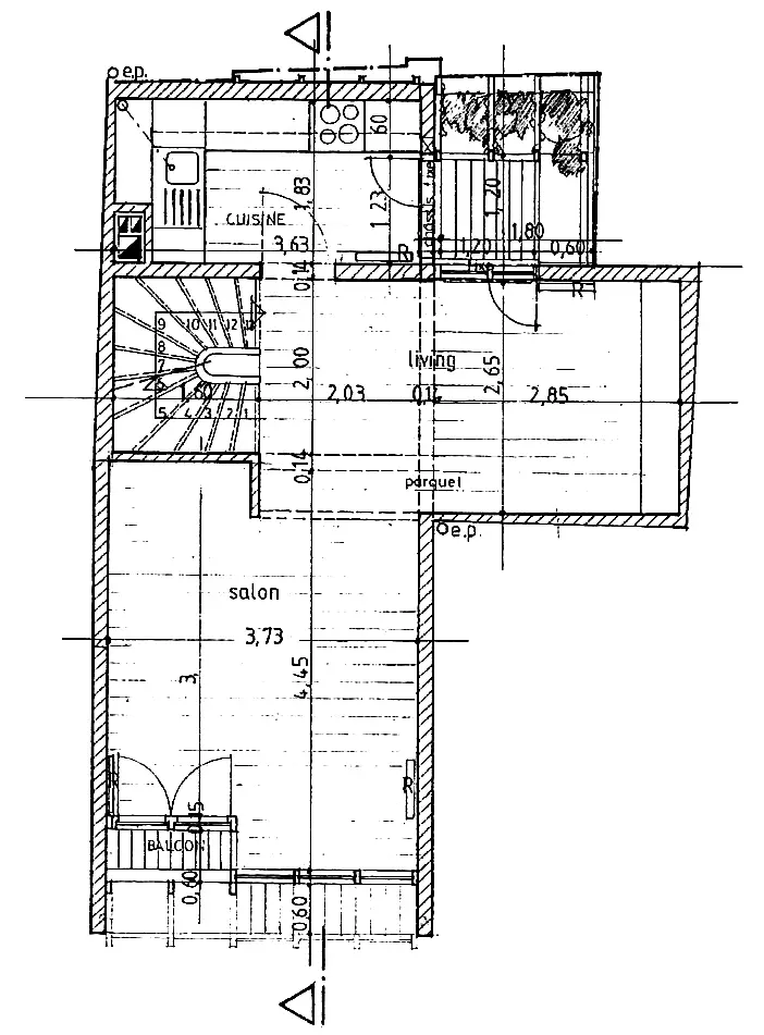
La maison, construite sur d'anciennes caves datant probablement du Moyen Âge, est caractéristique du parcellaire montois. Étroite, haute et d'une surface au sol inférieure à 50 m2, elle présente néanmoins un retrait au rez-de-chaussée créant un emplacement pour une voiture et une mise en scène de l'entrée. 

L'alignement du front de bâtisse est assuré par la présence d'une grille métallique coulissante. La façade fait la part belle au végétal et s'inspire librement du vocabulaire architectural emprunté aux serres botaniques. Ainsi, malgré les réticences administratives, de bas en haut, les éléments vitrés offrent aux pièces de jour un maximum de lumière naturelle tout en respectant le rythme vertical de la typologie montoise. 

Cette architecture est un témoin des nouvelles préoccupations bioclimatiques conséquentes aux premiers chocs pétroliers des années 1970.

Dominique Gluck

Sources
Archives de Archi Vert.
Géron Ghislain, Mons, coll. Patrimoine architectural et territoires de Wallonie, Wavre, 2011, p.340.