École sociale
Autres bâtiments universitaires / hautes écoles
1960 - 1967
1960 - 1967
1960 - 1967
1960 - 1967
1960 - 1967
Réalisé
À sa fondation (1947), l'école est installée au sein de l'école communale De Brouckère à Quaregnon. La direction déménage après la création de l'École catholique de service social (ISSHA) à Mons.
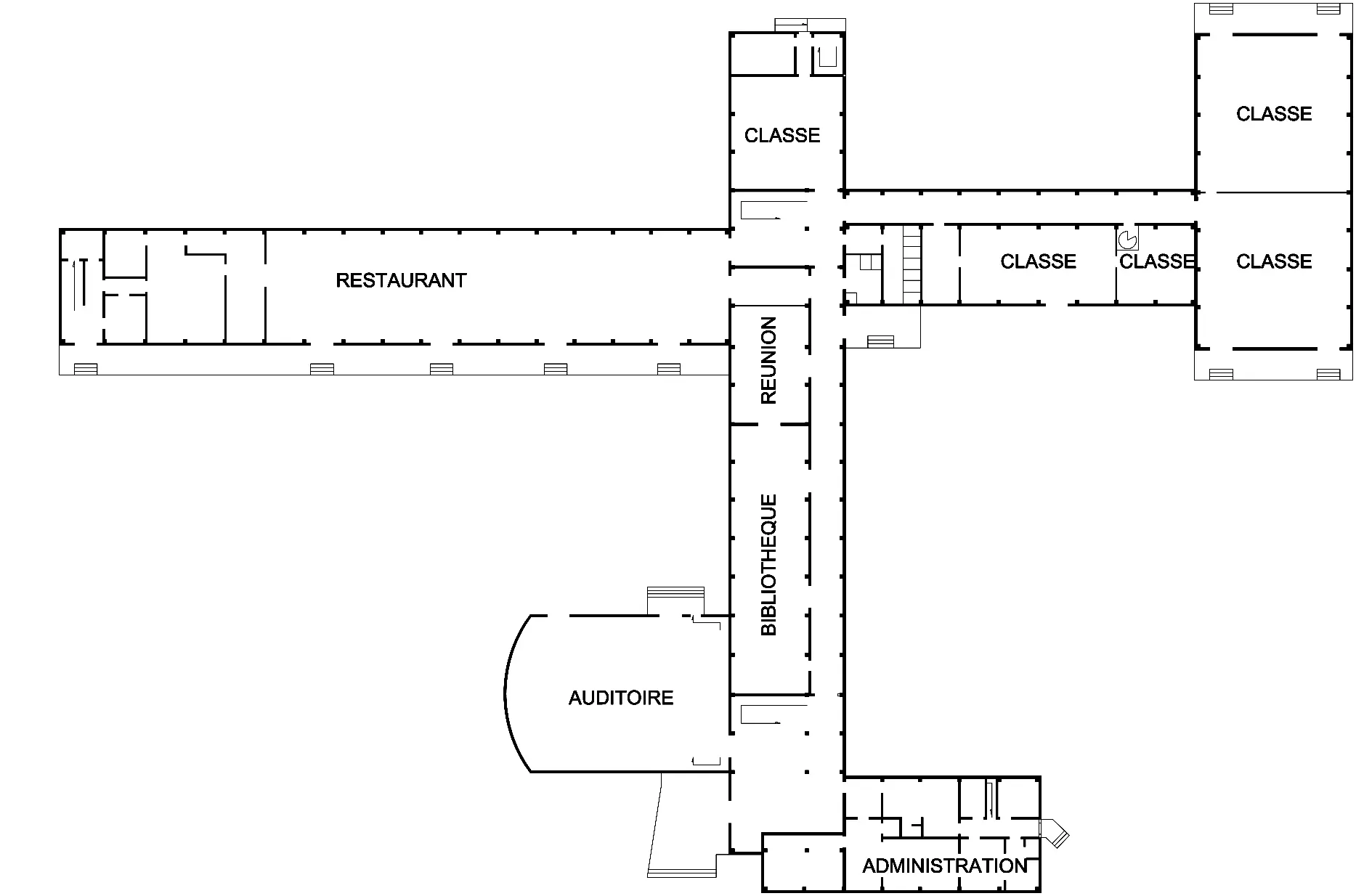
Le nouveau bâtiment répond au lycée Bervoets : la structuration en croix des volumes en longueur, les alignements, les gabarits similaires ou, encore, les façades préfabriquées en murs rideaux forment une même unité urbanistique et architecturale.
Un soin plus particulier est porté aux volumétries d'abouts structurant le projet et intégrant, entre autres, l'entrée principale, marquée d'un porche, et l'auditoire. Le traitement des façades, les soubassements et rives de toit des préfabriqués sont soulignés par l'emploi de pierre bleue appareillée à la romaine ou posée en bandes verticales, accentuées par un jeu d'arêtes rentrantes et saillantes.
Le plan permet l'aménagement de différents espaces extérieurs, dont un plan d'eau (disparu), sur lesquels s'ouvrent les larges baies vitrées et terrasses.
Isabelle De Smet
| Sources |
|---|
| Dossier d'autorisation de bâtir, Archives de l'Etat à Mons, n° 15231, Mons, 1960. |
| Mons, coll. Patrimoine architectural et territoires de Wallonie, Wavre, 2011, p.295. |