Derrière le mur
Habitation unifamiliale Logements étudiants
2010 - 2014
2010 - 2014
2010 - 2014
2010 - 2014
2010 - 2014
Réalisé
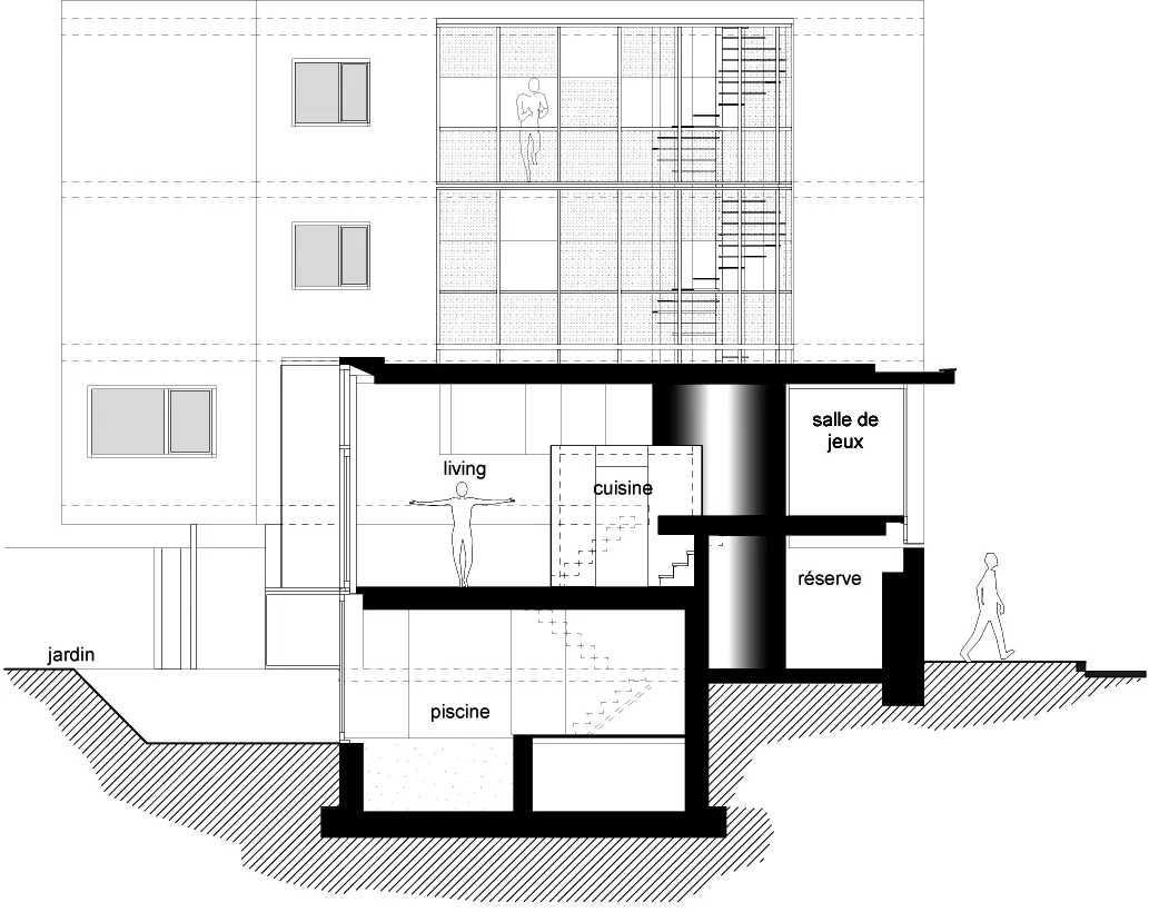
Au carrefour de la chaussée du Rœulx, la construction joue audacieusement de la parcelle de forme triangulaire. Le mur de clôture en briques est volontairement préservé pour protéger l'habitation de la circulation automobile. Surplombant celui-ci, deux volumes distincts se raccrochent aux gabarits des mitoyens. Le plus haut abrite quatre kots accessibles par un escalier en colimaçon dissimulé derrière une paroi métallique. Le plus bas accueille les chambres de l'habitation unifamiliale, tandis qu'à l'articulation du projet, la partie centrale est occupée par les pièces de vie, disposées en demi-niveau, surélevées par rapport à l'espace public.
Des modules préfabriqués en bois ont été développés en collaboration avec l'entreprise Stabilame, permettant de garantir la rapidité et la précision de la mise en œuvre, tout en simplifiant la pose des techniques spéciales (électricité, chauffage, ventilation ).
Thomas Waroux
| Sources |
|---|
| Vortex, Vortex, Archives de Vortex : Dossier habitation Derrière le mur. |