Cité estudiantine Pierre Houzeau de Lehaie (UMons)
Jalon XX
Internats / Homes d'étudiants Bâtiment universitaire
1967
1967
Réalisé
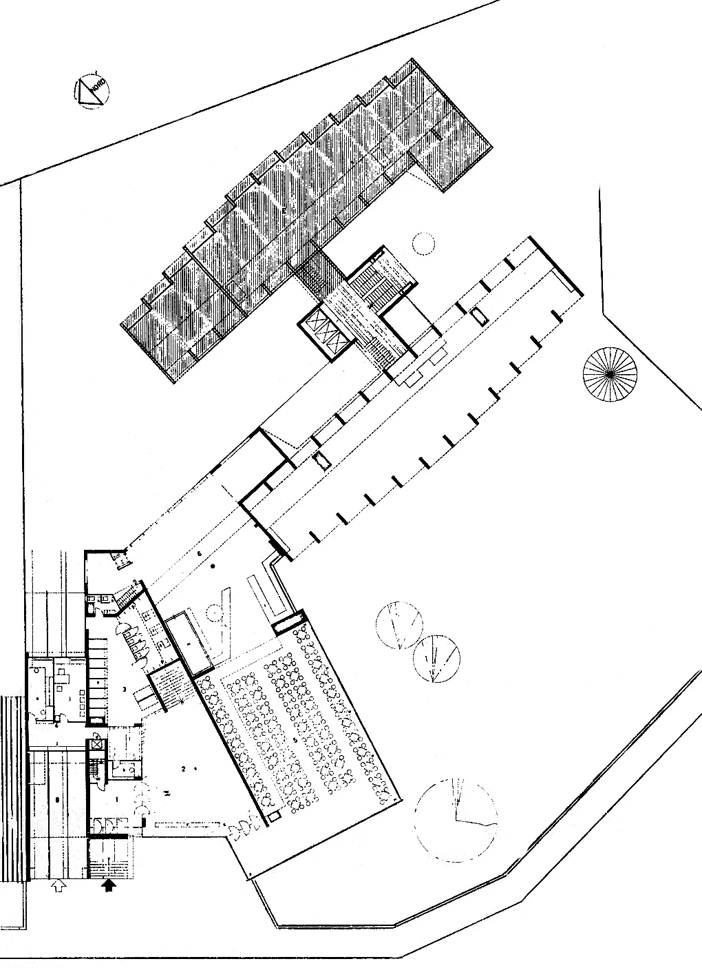
L'exiguïté de la parcelle à construire conditionne le parti de la densité et de la hauteur : la cité, inaugurée pour le cent vingt-cinquième anniversaire de la faculté, est conçue comme un véritable signe urbain.
La tour développe douze étages, abritant dans l'axe est-ouest cent quarante-quatre chambres (de près de 3 m sur 6 m) avec balcons et salles de travail (une par niveau). Au rez-de-chaussée, elle articule deux volumes de service : celui des restaurant, foyer-bar et salles de réunion largement ouverts sur l'extérieur grâce à l'emploi de l'ossature métallique, et celui des bureaux et appartements de service (concierge et directeur), placés à l'étage de l'entrée carrossable du site, dans une construction opérant remarquablement le raccord avec l'alignement des hôtels particuliers du boulevard.
L'architecte Renaat Braem, principal représentant du Mouvement moderne en Belgique après la seconde Guerre mondiale, identifie ce projet comme « l'œuvre maîtresse » de l'architecte René Panis, où il « donne la mesure de son talent en réunissant une synthèse, une solution fonctionnelle nouvelle, à une solution constructive osée ». Il fait ici allusion aux murs porteurs de la tour en briques (29 cm d'épaisseur) – matériau choisi pour ses qualités d'isolation phonique, essentielle dans ce programme de logements –, mise en œuvre dans une démarche de recherche appliquée (tests de résistance constructive) avec le Laboratoire d'essais des matériaux de la faculté. Disposée en retraits successifs, dictant formellement la composition, la maçonnerie révèle son ingéniosité dans la qualité spatiale intérieure – « le couloir s'élargit à mesure que le nombre de chambres s'agrandit », écrit Braem – et esthétique, où sa finition est meulée, tout en conférant à l'extérieur un effet de proue aux façades.
Réalisant à l'époque le plus haut immeuble en Belgique usant de cette technique, trahissant l'influence d'Alvar Aalto (Cité estudiantine d'Otaniemi en Finlande), l'architecte réussit à conjuguer dans un programme public l'exigence d'une architecture domestique, pour composer l'une des œuvres les plus marquantes de l'après-guerre en Wallonie.
Thomas Moor, Hugues Wilquin
| Sources |
|---|
| «La cité estudiantine de la Faculté Polytechnique de Mons» dans Rythme, n° 42, 1966, p.21-24. |
| Puttemans Pierre, «Cité estudiantine Pierre Houzeau de Lehaie» dans Architecture moderne en Belgique, p.164-165. |
| Panis René, «La cité estudiantine de la Faculté Polytechnique de Mons» dans Architecture, n° 50, 1963, p.36-42. |
| «Polytech News n°45» sur le site Calameo, en ligne http://fr.calameo.com/read/00026591582d855bbfe47, consulté le 13/11/2013. |
| «Pierre Houzeau de Lehaie et la cité estudiantine» sur le site Polytech Mons - Commission historique, en ligne http://historique.fede.fpms.ac.be/histo2/?p=1195, consulté le 13/11/2013. |
| Mons, coll. Patrimoine architectural et territoires de Wallonie, Bruxelles, Mardaga, 2011. |