Capitainerie et Club House du port de plaisance de Mons
Bars, Cafés et restaurants Ports de plaisance / relais nautiques Capitainerie
1999 - 2000
1999 - 2000
1999 - 2006
1999 - 2006
1999 - 2006
Réalisé
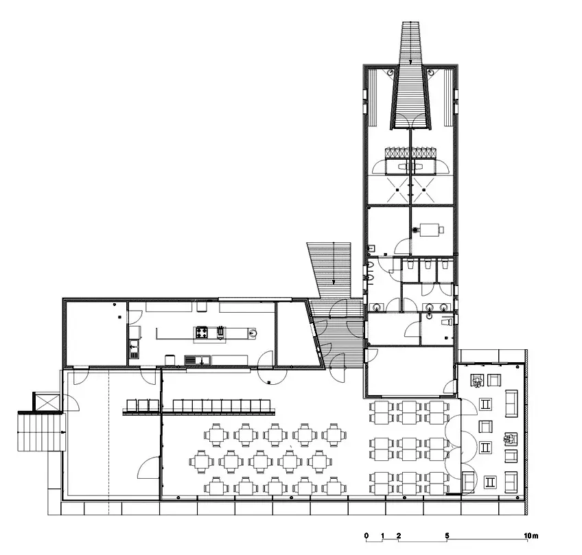
Au pied de la ville et en bordure du Grand Large, vaste plan d'eau (bientôt 53 ha) du canal Nimy-Blaton-Péronnes – qui relie les bassins de l'Escaut et la Meuse –, le projet vise à augmenter et à réorganiser la capacité d'accueil (mâts d'éclairage, nouveaux pontons, 157 anneaux), s'inscrivant dans l'essor régional de la navigation de plaisance.
À l'image des conteneurs posés sur le quai d'un port, les volumes de la Capitainerie s'articulent autour de la tour signal, qui culmine avec un panorama à 18 m au-dessus du niveau de l'eau. En raison de la faible portance du terrain, le système constructif est à ossature métallique sur pilotis (pieux de 11 m), jouant de décalages et porte-à-faux.
Différencié par type de bardages, chaque élément identifie les fonctions qu'il abrite : au rez-de-chaussée, deux boîtes en métal ondulant, percées de hublots, proposent aux plaisanciers les services (douches, sanitaires et laveries, réserve et atelier) ; en superposition, se différenciant par sa couverture en cèdre (ossature bois), la guesthouse offre aux clubs un espace de rencontre et une vue sur le large – comme le poste de garde, voisin, aux façades entièrement vitrées.
Afin d'élargir l'offre, le Club House est construit en continuation en 2006 : une vaste brasserie ouverte aux promeneurs, profitant par ses grandes baies d'une vue dégagée sur le Grand Large.
Hugues Wilquin et Thomas Moor
| Sources |
|---|
| Claisse Joël & Loze Pierre, Belgium New Architecture 5, Bruxelles : Prisme, 2011. |
| Eggericx Laure, «La langue du Bois» dans Les Nouvelles du Patrimoine, n° 90, janvier-février-mars, 2001, p.28-30. |
| Contesse Audrey, «Amas organisé.» dans A+, n° 206, juin-juillet, 2007, p.68-70. |
| Contesse Audrey, «A hauteur de Nimy, le bureau d'architecture Arcadus met en place, pièce par pièce, le Grand Large, un port artificiel sur le canal du Centre» dans A+, n° 227, août-septembre, 2007, p.68-70. |