Agence Bacob

Banques

2001 2001 2001 2001 2001
Réalisé

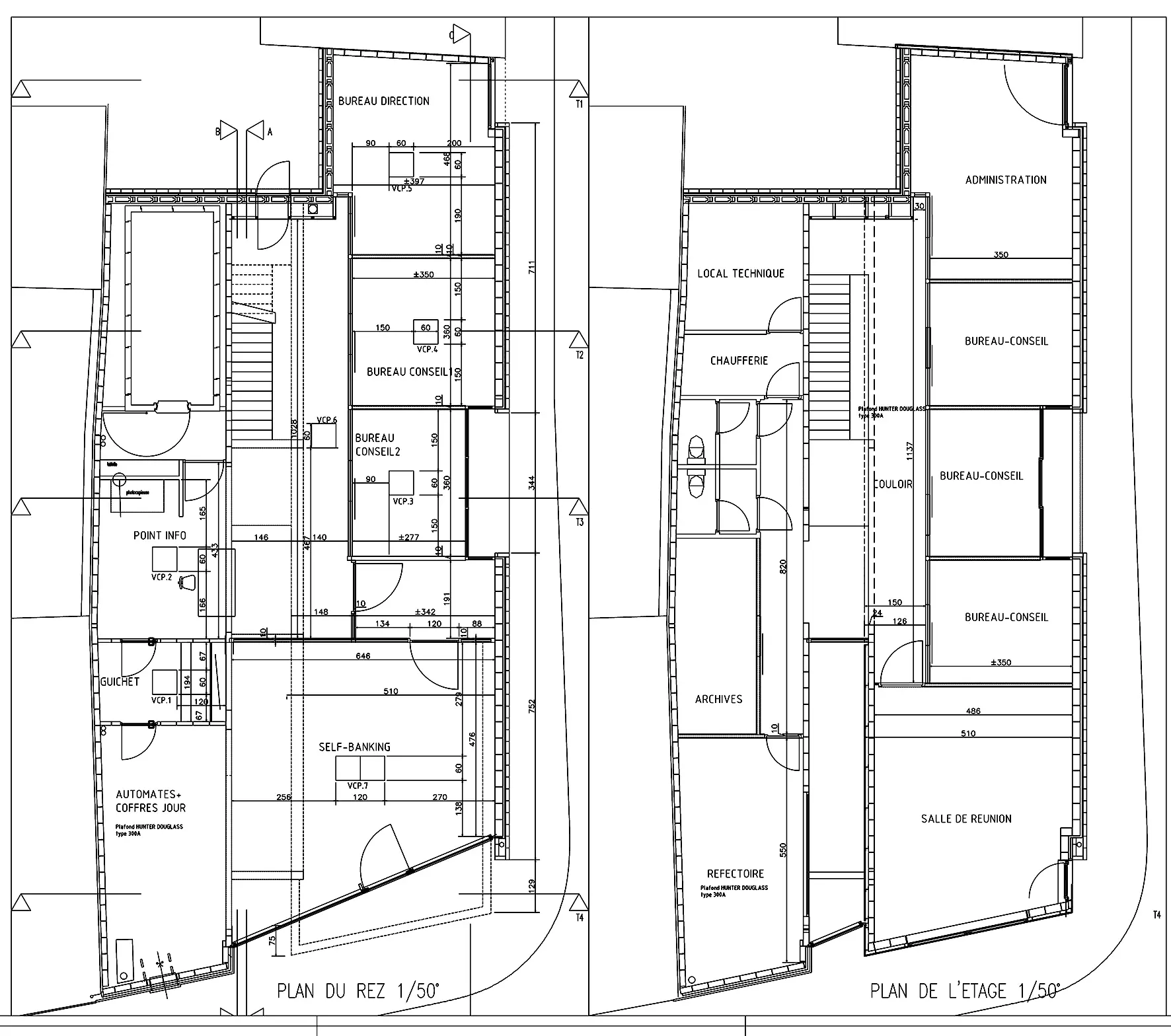
À l'époque de son ouverture, la succursale de la banque Belfius a été remarquée pour son inscription dans le contexte ancien. Son expression réinterprète les archétypes architecturaux du passé montois et les combine avec un vocabulaire contemporain, d'une grande simplicité et d'une rigoureuse géométrie. 

La typologie de la maison à pignon est transposée dans un volume bardé de zinc, porté par un mur monolithique en briques rouges à joints collés marquant l'entrée – à l'image des porches montois. De par sa conception, le rythme du parcellaire et les gabarits environnants sont respectés. Cette confrontation entre mémoire et présent crée des tensions qui, tout à la fois, interpellent et inscrivent l'œuvre dans une perpétuation de l'approche postmoderne de la construction de la ville.

Michel Vienne

Sources
Archives de l'association momentanée Bureau Gicart & Renaud et POP 96 : Dossier Dexia rue des Capucins.
«Conception d'une agence BACOB» dans Architecture en Hainaut, Mons : Association des architectes de l'arrondissement de Mons.
«Réalisations - BACOB Banque» sur le site Gicart-Renaud et Associés, en ligne http://www.gicart-renaud.be/realisations_details.php?id=59, consulté le 07/11/2013.
«Banque à Mons - Gicart-Renaud et associés» dans Terre cuite et construction, n° 98, Juillet-Août-Septembre, 2001, p.8-9.