Habitation-Atelier Holoffe-Suinen

Habitation unifamiliale Bureaux

2006 - 2007 2006 - 2007
Réalisé

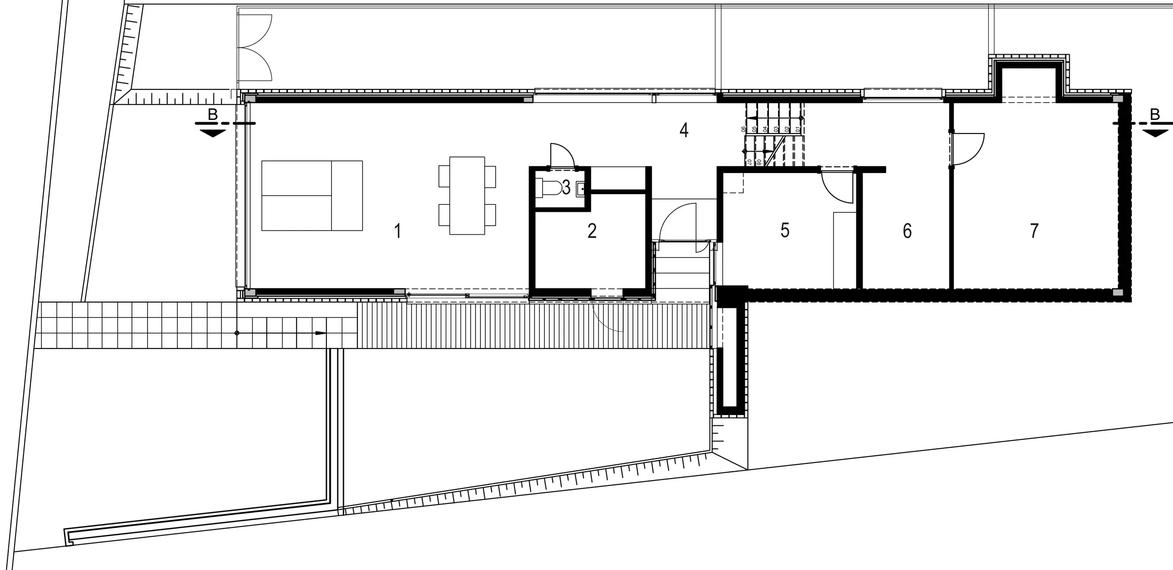
La maison se situe à la frontière entre l'agglomération et la pleine ruralité, sur un terrain en légère pente entouré par des constructions hétéroclites. Un terril, mémoire du passé industriel des environs, domine le contexte. Le projet se développe en longueur et s'installe en un volume basique, voire archaïque, en référence aux corps de bâtisse des fermes. 

L'espace intérieur se déploie par demi-niveau, profitant de la pente naturelle du terrain. Seuls quelques coulissants limitent atelier, séjour et zones de nuit, assurant la fluidité des espaces. La composition est rigoureuse, marquée par de grandes baies ouvertes sur le paysage. Leur disposition affirme une artificialité maîtrisée, quasi monumentale, dans un contexte plutôt incohérent et fragmenté.

Maurizio Cohen

Sources
Archives d'Etienne Holoffe : Dossier Habitation Holoffe-Suinen.