Siège administratif des oeuvres sociales du Pays de Charleroi
Jalon XX
Homes / Maisons de retraite
1947 - 1949
1947 - 1949
Réalisé
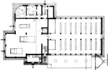
Simultanément à l'extension de la Cité de l'enfance, Bourgeois et Leborgne reçoivent une commande pour la construction de l'économat de l'orphelinat. Cet immeuble doit également abriter l'administration de l'intercommunale.
Le projet se fonde sur une réflexion aboutie autour des différentes circulations engendrées par le programme et tend à faciliter une utilisation simultanée de l'équipement avec des entrées depuis les rues de la Cité de l'enfance, de l'Orphelinat et le parc.
L'immeuble de trois étages est implanté en bordure de la cité pour le rendre à la fois accessible depuis la rue et depuis le domaine même. Puisque le niveau de la rue est plus bas que le reste du parc, la volumétrie du bâtiment est dissimulée par la pente et obtient la même échelle que les autres pavillons de la Cité de l'enfance.
Les façades sont réalisées en briques jaunes et rouges, une matérialité qui les rapproche des pavillons construits lors de la deuxième phase. Aujourd'hui, le bâtiment est occupé par une maison de retraite.
Iwan Strauven
| Sources |
|---|
| Bourgeois Victor & Flouquet Pierre-Louis, Victor Bourgeois. Architectures 1922-1952, Bruxelles, Éditions Art et technique, 1952, p.25. |