Centre de jeunesse
Jalon XX

Centres communautaires

1958 - 1970 1958 - 1970
Réalisé

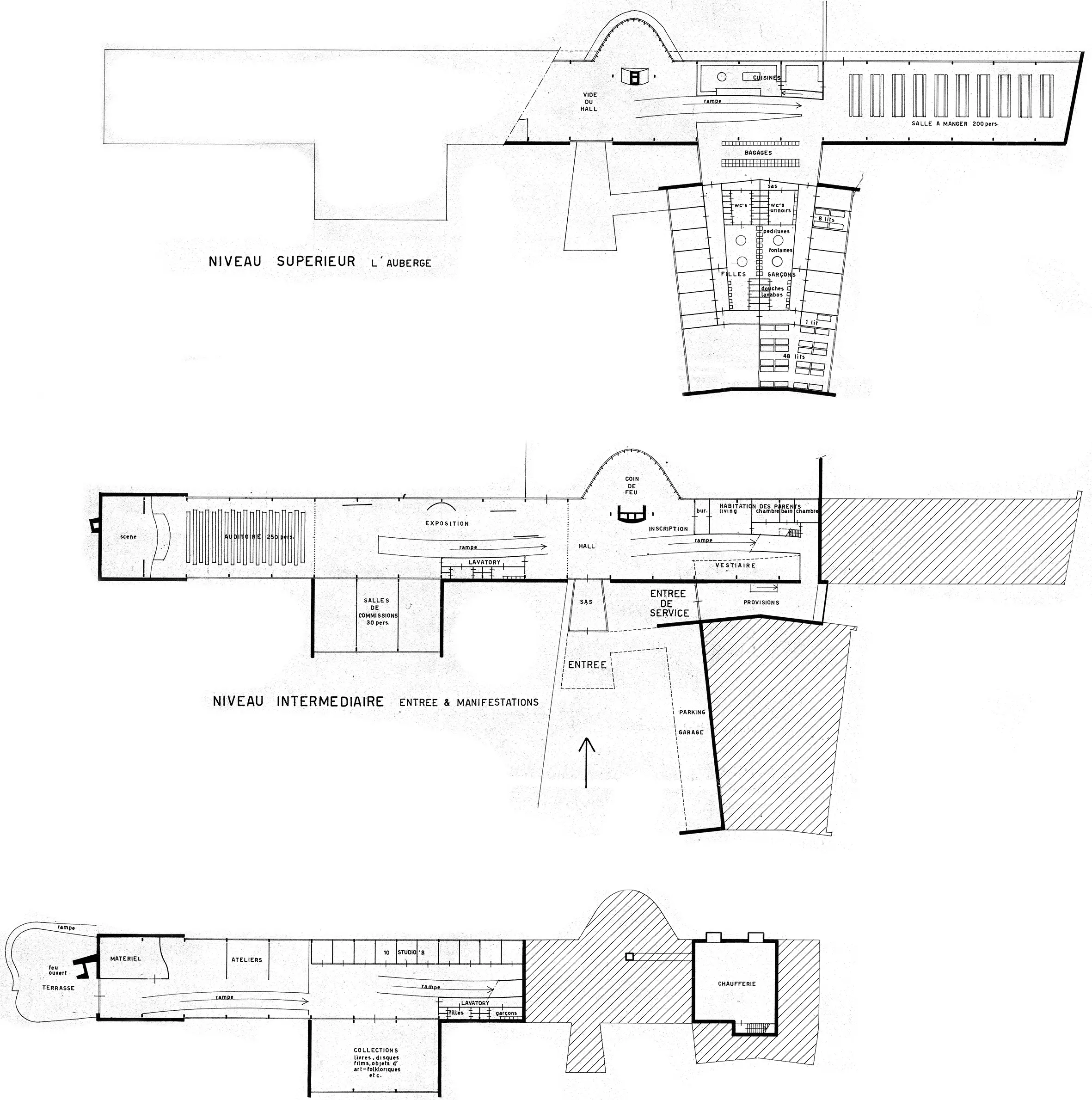
Le centre de jeunesse est une infrastructure d'accueil de grands groupes disposant de cent vingt lits en dortoirs, d'un restaurant, d'espaces pédagogiques, d'une bibliothèque et d'un auditoire de quatre cents places. 

Le bâtiment est conçu par les architectes comme un volume élancé couronné d'une toiture ondulante et bordé de part et d'autre d'excroissances plus ou moins importantes : du côté de la façade arrière (sud), un impressionnant cône tronqué entièrement vitré abrite un coin du feu ouvert, et, du côté de la façade principale (nord), deux grands volumes avec des garages et le dortoir à l'étage, d'une part, et la bibliothèque surmontée de trois salles de réunion, de l'autre. 

L'entrée principale se trouve entre ces deux derniers volumes et est ponctuée par une tour-signal construite avec six mats en bois. Le projet tire profit au maximum de la déclivité du terrain et est caractérisé par une architecture narrative construite autour d'une série d'éléments focaux qui sont présents dès les premières esquisses : la tour, le feu ouvert et une cheminée extérieure. Il est renforcé par des éléments tels que le petit volume saillant soutenu par un poteau abritant la régie de la salle de spectacle. 

Grâce au choix des matériaux (bois, verre, moellonnage rustique, béton et acier), le projet s'inscrit parfaitement dans le contexte. À l'intérieur, cet éventail de matériaux n'empêche pas de laisser la logique structurelle du projet complètement apparente. Le résultat est une synthèse réussie entre robustesse traditionnelle et architecture flamboyante des Trente Glorieuses.

 

Iwan Strauven