Maison Driesmans

Habitation unifamiliale

1957 - 1958 1957 - 1958
Réalisé

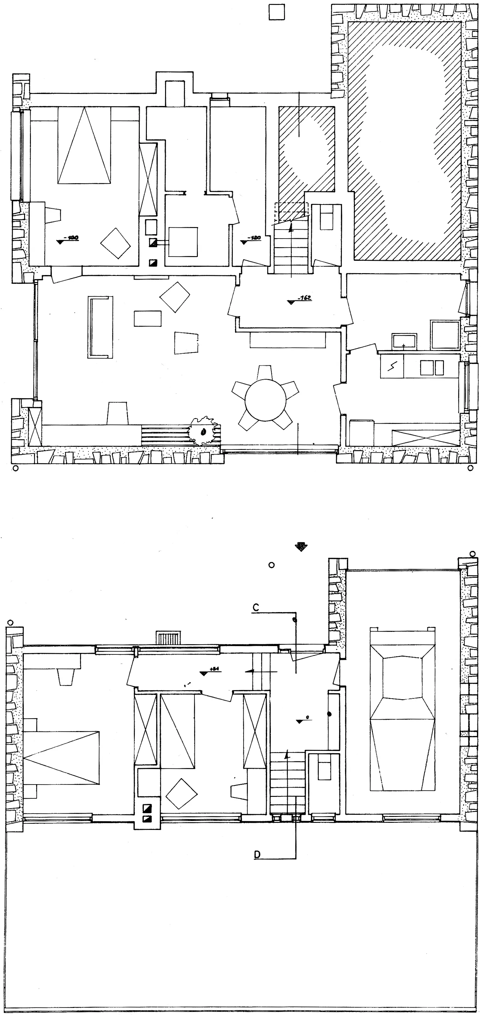
S'inscrivant sur une crête de carrière, le projet fait partie d'un ensemble de deux habitations parfaitement intégrées au paysage, tant par leur forme que par leurs matériaux. Combinant maçonnerie de moellons extraits sur place et enduit blanc, elles s'inscrivent dans le sillage de l'œuvre contemporaine de l'architecte Roger Bastin, dans l'atelier duquel Henri Debras découvre à l'époque ce qu'il nomme « l'architecture humaine ». 

Orientée est-ouest, la maison Driesmans adopte un plan inversé pour suivre la double pente du terrain : depuis le niveau de la voirie, où une chambre et un bureau flanquent le garage, un escalier descend vers les pièces de jour, au niveau du jardin. 

La volumétrie échelonnée, sous des toitures en faible pente, traduit l'organisation interne et permet l'ouverture de la plupart des pièces vers le sud-est et le paysage boisé en contrebas.

Claudine Houbart

Sources
«Deux villas dans le Condroz» dans Architecture, n° 25, 1958, p.72.
«Deux maisons unifamiliales en Condroz» dans Habiter, septembre, 1961, p.287-291.