Maison rue de Bascoup

Habitation unifamiliale

1978 1978
Réalisé

À proximité du parc de Mariemont, la rue comporte un intéressant ensemble de maisons privées de l'après-guerre (n° 363, 365, 373, 381, 410, 414 et 450), expression du mythe pavillonnaire américain : le logement à la campagne accessible à tous. 

Les grandes idées du Mouvement moderne de l'entre-deux-guerres, portant le message de massification de la production du logement pour le prolétariat, laissent ici la place à une démocratisation des valeurs de l'architecture bourgeoise, traduites dans l'individualisation de chacune des constructions. 

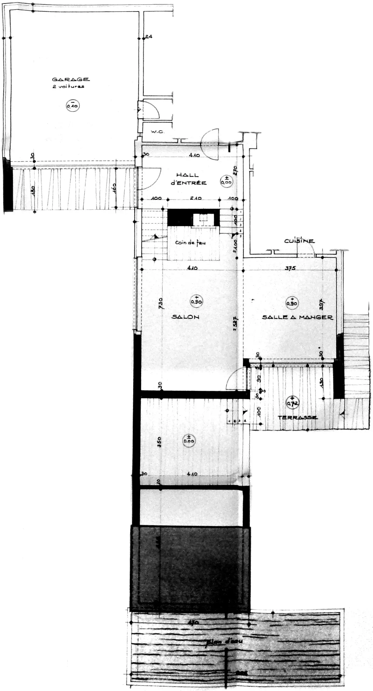
Parmi celles-ci, l'habitation transformée par l'architecte Paul Cardinal – qui se compose de deux volumes simples s'imbriquant l'un dans l'autre – se voit agrémentée d'une extension prolongeant le pan de toiture inclinée tout au long du bâtiment, jusqu'au sol de la devanture de la façade avant. Le hall d'entrée et le salon s'agrandissent, un feu ouvert s'installe au centre de l'habitation et se prolonge à l'étage, la salle à manger s'ouvre sur une terrasse extérieure. 

Un plan d'eau bordant la façade est également inséré dans la parcelle, tissant le lien entre l'habitation et son environnement naturel. Toutes ces compositions architecturales sont constructivement rationnelles, les rendant accessibles à la clientèle de la classe moyenne. 

Certains éléments du vocabulaire architectural visent à donner sens aux formes, tout comme on l'observe en 1955 dans l'habitation construite par Jacques Dupuis et Simone Guillissen-Hoa ou, en 1959, dans l'habitation personnelle d'Albert Bontridder à Rhode-Saint-Genèse.

Ornella Vanzande et Jean-Alexandre Pouleur

Sources
Commune de Manage - Autorisations de bâtir (Service Urbanisme), Archives de Manage, n° 1978/061, Manage, 1978.