Centre Mutien-Marie
Jalon XX

Eglises ou apparenté

1980 - 1980 1980 - 1980
Réalisé

Le centre Mutien-Marie est un lieu de pèlerinage et de prières situé à l'extrémité septentrionale du site de l'abbaye Saint-Berthuin de Malonne. Le frère Mutien-Marie était un religieux belge que l'Église a sanctifié en 1989. 

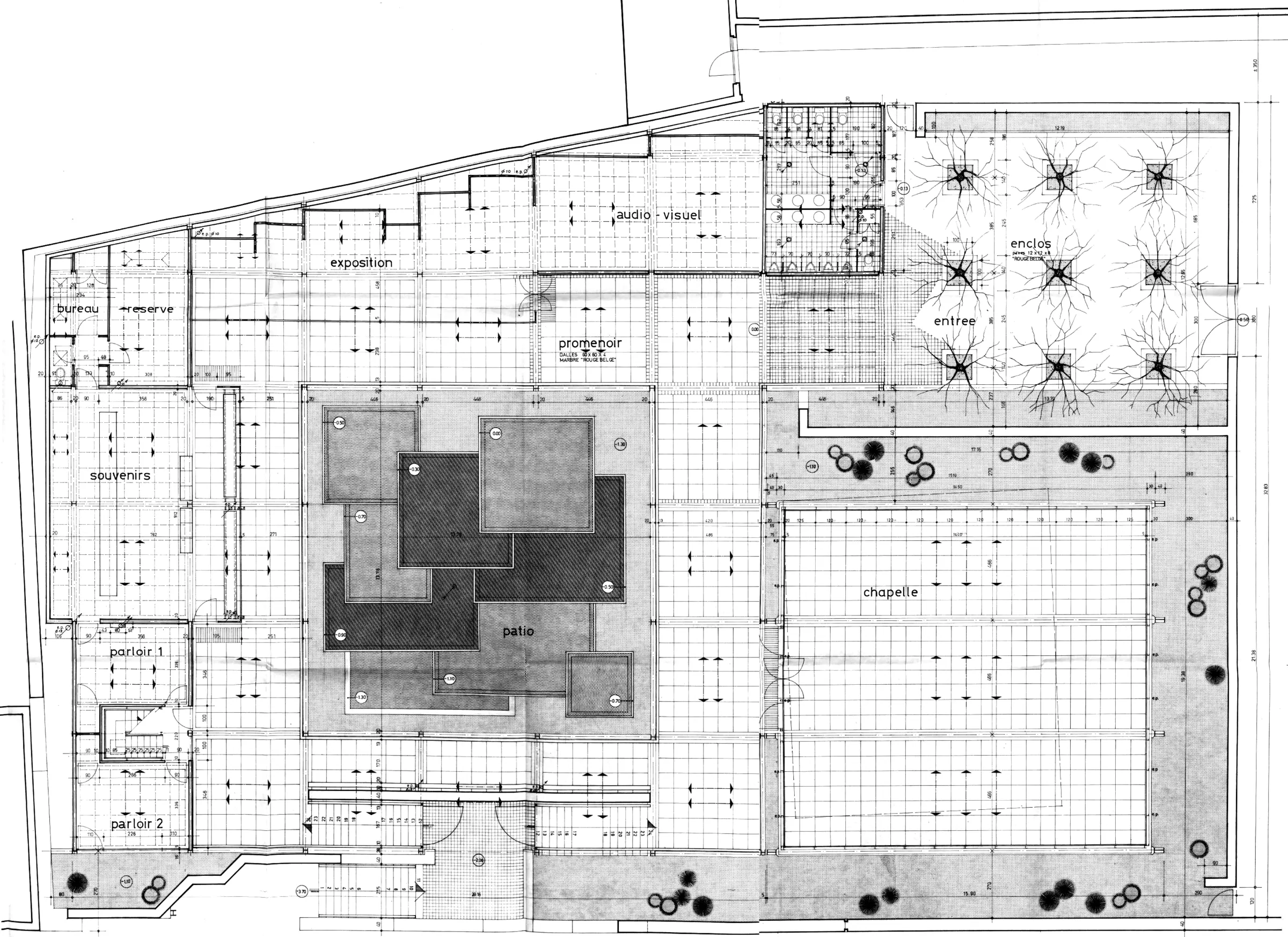
L'intervention de l'architecte Michel Dussart est réalisée autour d'une cour carrée occupée par un bassin d'eau entouré de bacs de plantes. On y accède soit par la rue en contrebas, par une rampe d'escalier entre les murs en moellons, soit par un enclos carré et planté d'arbres qui relie le centre à l'ensemble de l'abbaye. 

Trois volumes de plain-pied s'articulent autour du vide : le cube vitré de la chapelle, un petit musée avec une salle audiovisuelle où est racontée la vie du saint et un corps de deux niveaux qui accueille le magasin de souvenirs, des locaux de services et des logements à l'étage. 

Le volume de la chapelle est un exemple d'insertion d'architecture contemporaine radicale dans un contexte chargé d'histoire. La structure est une charpente d'acier peinte en blanc posée sur des poutres métalliques alvéolaires. Des poutres en treillis Warren portent la toiture et des grands vitrages fixés sur des montants métalliques noirs. 

À l'intérieur dominent les tons blancs : le sol en marbre de Carrare, le tombeau du saint, le plafond, les murets et les structures. La transparence du volume plonge l'espace dans le contexte. La confrontation est impressionnante, mais elle n'empêche pas de trouver une sensation de sérénité et de recueillement.

 L'ensemble présente une grande cohérence marquée par la structure métallique régulière, qui ordonne le projet et articule les espaces, les revêtements de sol et des façades internes, en dalles de marbre rouge sciées ou clivées, et les habillages des plafonds en éléments carrés en tôle emboutie. 

Le site est entouré de murs en moellons qui définissent le périmètre. Ils assurent aussi le lien physique et visuel avec le site historique de l'abbaye. Une croix en métal peinte en blanc est accrochée près de la rampe d'escalier qui mène à l'accès et renvoie visuellement à la structure de la chapelle. 

Maurizio Cohen

Sources
Archives de Michel Dussart.