Maison Hecq

Habitation unifamiliale

2003 - 2009 2003 - 2009
Réalisé

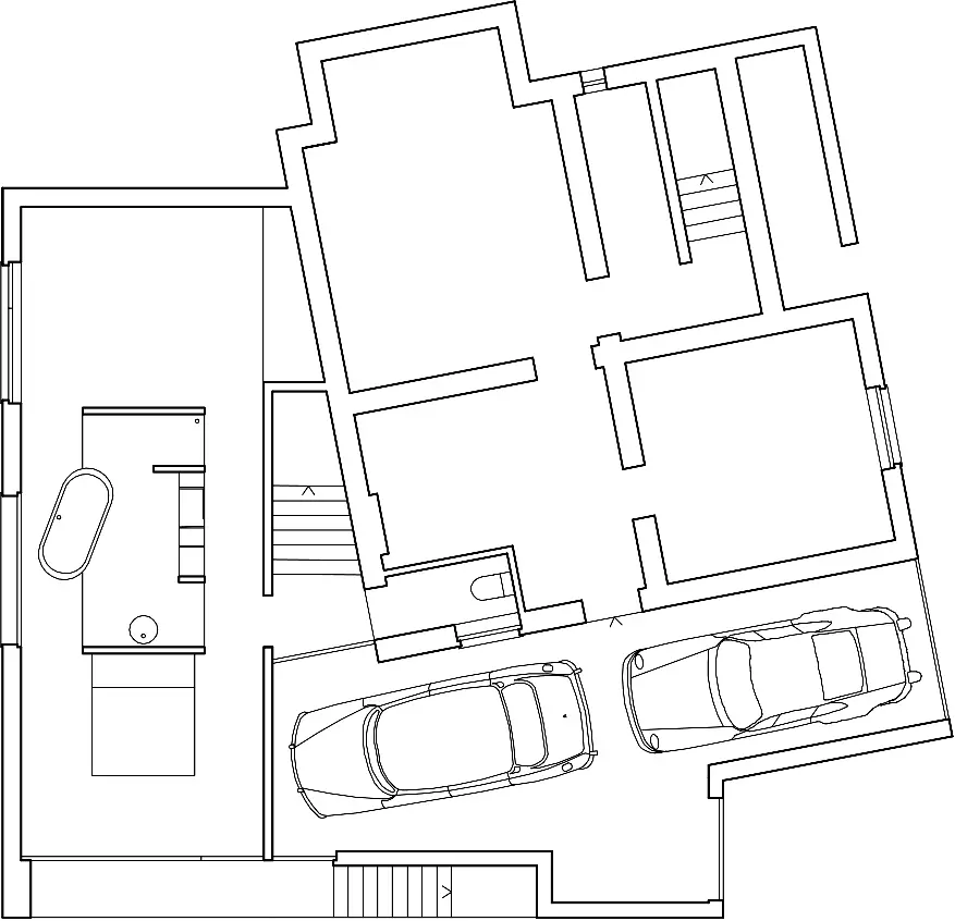
Cette petite villa quatre façades en briques rouges s'implante au bord de la Sambre, lorsque la rue de la Saline se perd et se confond dans un sous-bois dense. 

La construction d'origine avec son bow-window, sa toiture compliquée en ardoises, ses châssis en bois et ses impostes blanches en fait une petite maison de campagne fort classique. Tout contre vient s'adjoindre une extension aux airs de simple garage. Cet ajout, en briques, se caractérise par une forme très épurée, entretenant un rapport intimiste et discret avec le sentier qui dessert les lieux. Il faut faire le tour pour découvrir un jeu tout à fait différent entre la maison et l'extension, l'intérieur et l'extérieur. 

Derrière, la façade s'ouvre largement sur un pré qui s'évanouit dans la rivière, un escalier extérieur léger mène à ce jardin et la jonction entre l'ancien et le nouveau est assurée par une élégante passerelle.

Anne-Laure Iger